Unity Temple
| Unity Temple | |
|---|---|
![]() | |
| Location | 875 Lake Street Oak Park, Illinois |
| Coordinates | 41°53′17″N 87°47′49″W / 41.88806°N 87.79694°W |
| Area | 0.5 acres (0.20 ha) |
| Built | 1905–1908 |
| Architect | Frank Lloyd Wright |
| Architectural style(s) | Prairie style; Modern |
| Governing body | Private |
| Criteria | Cultural: (ii) |
| Designated | 2019 (43rd session) |
| Part of | The 20th-Century Architecture of Frank Lloyd Wright |
| Reference no. | 1496-001 |
| Region | North America |
| Designated | April 17, 1970[1] |
| Reference no. | 70000240[1] |
| Designated | December 30, 1970[2] |
![]() Location of Unity Temple in Chicago metropolitan area ![]() Unity Temple (Illinois) ![]() Unity Temple (the United States) | |
Unity Temple is a Unitarian Universalist church building that houses the Unity Temple Unitarian Universalist Congregation at 875 Lake Street in Oak Park, Illinois, United States. The structure, designed by the architect Frank Lloyd Wright in the Prairie style, is cited as an early example of modern architecture.[3] The building consists of an auditorium to the north and a church house called Unity House to the south. The two sections, and an entrance pavilion between them, are all made of reinforced concrete.
The congregation was formed as the Unity Church of Oak Park in 1871. It originally occupied a Gothic Revival building and went through several pastors in its first two decades. Rodney Johonnot, who became the senior pastor in 1892, began planning a replacement structure in the early 1900s. After the original church burned down in 1905, the board of trustees selected a site on Lake Street and hired Wright to design a new building, Unity Temple. Wright's plans were approved in 1906 after much debate, and construction began on May 15 of that year. After various delays, Unity House opened in September 1907, and the auditorium was finished in October 1908; the church was dedicated on September 26, 1909. Over the years, the temple attracted visitors from around the U.S. and worldwide. The church was restored in the 1960s, and it gradually underwent further upgrades from the 1970s to the 2000s. Unity Temple was completely refurbished from 2015 to 2017.
The temple is decorated with abstract motifs instead of overtly religious imagery. The facade is made of Portland cement, which has been washed away to expose the gravel underneath; there are recessed clerestory windows near the top. Unlike contemporary churches, Unity Temple was designed without a spire; instead, the roof consists of multiple flat, overhanging concrete slabs. The auditorium is shaped like a Greek cross, with stair towers at each corner. It has two levels of seating surrounding a central pulpit, in addition to clerestories and skylights. Unity House has skylights and two balconies.
Unity Temple has received extensive architectural commentary over the years, and it has been the subject of many media works, including books and museum exhibits. Its design is credited with having helped inspire multiple architects. Unity Temple is designated as a National Historic Landmark and is part of The 20th-Century Architecture of Frank Lloyd Wright, a World Heritage Site.
Early history
Eleven members of the Union Church—a liberal Protestant congregation in Oak Park, a village in the suburbs of Chicago, Illinois—met on January 25, 1871, to discuss the formation of a new congregation.[4][5] E. W. Hoard hosted a meeting to raise money for a church building,[6][7] collecting more than $5,000.[5][7] Unity Church of Oak Park, a non-denominational church, was formed that March.[5][7] The congregation acquired land at the southwest corner of Wisconsin Avenue (later Pleasant Street) and Marion Street, south of the Union Pacific West railroad line, from Milton C. Niles.[7] The treasurer, Edwin O. Gale, provided $5,600, or nearly half of the $13,689 cost.[8][I] It is unknown who designed the original church, which was built in the Gothic Revival style.[8][9] The original church was a 40-by-80-foot (12 by 24 m) rectangle topped by a 125-foot (38 m) spire.[9][10] Inside was a ground-level parish hall with an auditorium above it;[9][11] a Chicago Tribune article from 1872 described the church as having a stone foundation and wood frame.[10] Within the auditorium was a raised pulpit and rows of seats bisected by a central aisle.[9]
Work on the new church began in early 1871, and the basement was finished later that year.[5] A consecration ceremony was held on August 11, 1872.[8][10] In its early years, the congregation was composed of Universalists and Unitarians.[12] As such, the church went through several pastors in its first decade. In 1882, some of the congregation's Universalist members formed a sub-congregation affiliated with the Universalist Church of America; the congregation at large remained unaffiliated with any denomination.[12][13] After going through six pastors in fifteen years,[13] the church selected Augusta Jane Chapin as its pastor in 1886.[12][14] During Chapin's tenure, Anna Jones Wright, the mother of the architect Frank Lloyd Wright, joined the congregation.[9][15]
Chapin left the congregation in December 1891,[13] and Rodney Johonnot became the senior pastor the next year.[16] During Johonnot's first four years, the congregation grew to 225 members.[17] A church organ was installed in 1897.[9][13] The congregation had decided to build a new structure by March 1901, when members voted to establish a fund for the construction of a new temple.[18][19] Johonott felt that the existing building could not accommodate all of the congregation's activities.[19] The congregation hired H. P. Harned to design a new structure on the existing site, south of the railroad tracks.[20] By then, numerous churches were being built in Oak Park,[18] and many of the newer churches were being built on Lake Street, north of the tracks.[21] In December 1904, the board of trustees again asked the congregation for donations for a new temple.[22] Following a meeting in May 1905,[23] a committee was appointed to discuss plans for the new building.[24]
Temple development
The original Unity Church was destroyed on June 4, 1905, when a lightning strike started a blaze;[25][26] firefighters were unable to extinguish the flames because of low water pressure.[13][24] The fire caused about $20,000 in damage[26][II] and destroyed everything except for the piano, chairs, paintings, dishes, and utensils.[27] Within one week, the congregation had appointed four committees to oversee fundraising, site selection, design, and construction.[28][29] In the meantime, the congregation temporarily met at Nakama Hall.[13][30] The nearby First Baptist Church also hosted some of the congregation's events.[13]
Selection of site and architect

Initially, it was estimated that the new building would cost $50,000.[31][III] The fundraising committee requested donations from various sources,[32] while the site selection committee recommended that the new temple be built "in some place more central".[28] At the time, two-thirds of the congregation lived south of Lake Street, but congregants favored a site near that street; only one person preferred to keep the existing site.[33] The committee considered several locations throughout the village.[33][34] Two of these sites were located at Lake Street and Kenilworth Avenue: a private house on the southwestern corner, and a vacant lot owned by Gale on the southeastern corner.[34] In early August 1905, the congregation paid Gale $10,000[34][35] or $11,000.[29][IV] The tract measured 150 feet (46 m) along Kenilworth Avenue and either 100 feet (30 m)[34] or 105 feet (32 m) along Lake Street.[35] The site complemented the nearby First Presbyterian and Grace Episcopal churches slightly to the west.[34][30]
When the site was selected, the congregation had raised $30,000 toward the new building,[30][V] and they began searching for an architect shortly afterward.[36] On August 30, the planning committee met with nine architects, selecting four finalists: Frank Lloyd Wright, Dwight H. Perkins, William Augustus Otis, and Normand Smith Patton.[37] At their September meeting, Unity Church's board of trustees voted to allow the planning committee to select an architect.[38] This person was to draw up plans for an edifice costing no more than $30,000.[38][39]
Wright had been selected by mid-September.[40][41][42] The engineer Charles E. Roberts, who led the church's building committee, had influenced the church's decision to select Wright.[40][43] According to Wright, the board had considered hosting an architectural design competition (which he would have refused to join),[43][44] but the historian Joseph Siry writes that there is no evidence that the board ever considered such a competition.[45] Construction News reported that the temple would cost $35,000 and would be a one-story, brick-and-stone edifice.[42][46][VI] Though Wright may have considered using brick, this was never recorded in his plans.[46][47] Wright instead proposed using concrete to save money,[46][48][49] since, at the time, the church had only $45,000 on hand.[11][46][50][VII] The temple was the first public building that Wright designed by himself.[51]
Design
Original plans
The trustees mandated that the new house of worship include a sanctuary for worship, a meeting room for secular events, and a classroom for the Sunday school.[39][52] Furthermore, as Lake Street was a major street, Wright had to design a monumental building that would also fit the church's budget.[43] Many of the original drawings have been lost or destroyed,[11] but Wright extensively documented his thought process in his autobiography.[11][53] Wright wrote that Johonnot had wanted a "Mission"-style building,[54] and he avoided traditional church architecture, instead proposing to the planning committee a "temple to man ... in which to study man himself for his God's sake".[55][56] In the early plans, the temple's northern wall was aligned with the house to the east (which was set back 40 feet (12 m) from Lake Street), and the north–south axis was aligned with the house to the south.[52] Wright created physical drawings only after extensively refining the plans mentally.[57][58] He also produced a plaster model of the temple, which he presented to the planning committee.[11][59]
The entrance to the main sanctuary, known as the auditorium, was intentionally positioned away from the streetcar lines on Lake Street.[52][60][61] Wright did not want to put the meeting room and Sunday school in the auditorium, as he felt that it would "spoil the simplicity of the room".[60][62] Accordingly, these rooms were instead placed in a separate church house called Unity House,[52][60][62] which was linked to the auditorium by a central entrance hall.[52][63] Having decided upon the site layout, Wright next designed the cube-shaped auditorium.[64] Some preliminary drawings for the auditorium still exist. These include Scheme A, which called for 388 seats facing a pulpit on the south wall, and the rejected Scheme B, which called for 478 seats facing the north wall.[65]
Design changes
.jpg)
In December 1905, the planning committee received Wright's plans and recommended that the board of trustees approve them.[39][41] The same month, Gale gave the congregation a 20-foot-wide (6.1 m) strip of land on Kenilworth Avenue.[66] By the beginning of 1906, the site of the original building had been sold for $6,500.[67][VIII] The congregation decided to proceed with construction, even though it had received only one bid for the general contract, which exceeded the church's budget by $8–10 thousand.[67][68][IX] Thomas Skillin, who led the board of trustees, reported that the temple was to cost $40,000 but that there was only $31,000 available.[69][70][X] The trustees considered modifying the plans, splitting work into two phases, or borrowing money.[69] Wright offered to reduce the cost to $35,000[XI] by revising the plans and deferring installation of the furnishings.[71][72]
Skillin objected that the auditorium was too small and dark.[73][74] At its meeting on January 18, 1906, the board asked Skillin and Johonnot to discuss possible modifications with Wright.[74] Subsequently, Wright revised the auditorium's design,[75] and he invited 75 members of the congregation to see the drawings and models for Unity Temple at his studio.[71][76] The board approved Wright's revisions on February 7,[11][75] on the condition that no more than $36,200 be spent.[75][XII] Details of the design were reported in the local media on February 24,[77] and a brochure describing the final plan was published on March 4.[78] Wright's assistant Charles E. White Jr. said the planning process had been marked by "endless fighting".[79][80] Wright continued refining the design details even after the final plans were accepted and (in some cases) partially completed.[81] Despite initial objections to Wright's design, Oak Park residents eventually came to like it.[76]
Construction
Early construction
It took weeks to find a general contractor.[82] Most of the bids that church officials did receive were significantly over budget, probably because of the unconventional nature of the concrete design,[83] which drove many contractors away.[50] Contractors found it difficult to decipher Wright's plans, which did not resemble standard blueprints.[83] Paul Mueller, who had previously built Wright's E-Z Polish Factory and Larkin Administration Building,[84] was ultimately selected as the contractor.[85][86] Wright and Mueller began discussing the temple in January 1906,[83] and Mueller was hired that April, having submitted a low bid of $32,221.[85][XIII] The trustees agreed to pay Mueller $32,661 as long as Mueller paid a $15,000 bond, which would be refunded if the temple was completed on time.[87] The board also approved a $1,243.23 builder's fee for Wright.[88][XIV] A groundbreaking ceremony took place on May 15, 1906.[89][90] One of Wright's draftsmen, Isabel Roberts, acted as a liaison to church officials, while Arthur Tobin coordinated the construction schedules.[91]
The first part of the temple to be constructed was Unity House.[92] Work on the foundation progressed slowly, and the building committee had to allocate another $645.60 for the foundations due to cost overruns.[93][XV] Mueller was also busy with other projects across the United States, which further delayed the temple's construction.[93] The contractors acquired large amounts of wood to create the formwork, into which the temple's concrete slabs were to be poured.[94] The wooden forms were constructed to uniform dimensions of 12 by 3.5 feet (3.7 m × 1.1 m), allowing them to be reused;[94][95][96] each timber form was made of several 2-by-4 boards.[97][98] Rectangular blocks of wood were used to cast the facade's 12-foot-tall (3.7 m) concrete columns, which had to be cast in multiple pieces because they were too large.[98][99] The various pieces of each column were bound together using grout.[100]
Wright contemplated embedding red granite or another material into the outer walls.[101][102] Twenty samples of concrete, embedded with red granite or gravel, were presented to the board of trustees for review.[103] Church officials decided not to use red granite due to the expense involved;[102] instead, they agreed to apply an acidic solution to roughen the facade.[104] The concrete walls were poured at a rate of no more than 18 inches (460 mm) every 24 hours.[93][105] The walls were constructed one by one, and the wooden forms had to be disassembled and rebuilt after each wall was completed, which caused further delays.[106] In addition, concrete could not be poured during the wintertime.[89] Foster & Glidden Co. were hired in September 1906 to install the electrical, plumbing, and heating and ventilation systems.[107] Although Mueller's contract mandated that the temple be completed by November 1906,[90] the exterior was not nearly finished at that time.[92][107] This prompted Edwin Ehrman, the building committee's leader, to complain to Mueller.[92][108] Furthermore, Wright frequently modified the plans while construction was underway, then tried to force the trustees to pay for the increased costs, to which they refused.[109] Mueller, who did not reject Wright's changes, lost money as a result[109] and eventually went bankrupt.[110][111]
Delays and completion

The heating system was installed in February 1907.[112] Amid increasing expenses and decreasing revenue, the congregation's general fund had dwindled to $11.31 by March,[XVI] and many former members had departed.[112] Oak Leaves wrote that "the finances were in good condition", despite a shortfall in the construction fund.[113] By then, Wright wrote that Unity House would be finished in May and the auditorium in September.[114] The eastern wall and parts of the auditorium's stair towers had been completed by May, but the roofs had not been constructed.[115] Church officials had resorted to borrowing money, despite a concerted attempt to obtain donations and other fees from the congregation.[116] Unity House began hosting services on September 15, 1907,[117] and the church's Ladies Social Union purchased some furniture the same week.[118] The auditorium's roof had been completed, but the terraces and entrance pavilion were still under construction,[119] and landscaping work was still ongoing.[120] Congregants had to enter Unity House through the back door.[121]
Wright and the contractors continued to fine-tune the building's heating system,[120] and the contractors submitted invoices for their work, which the congregation could not afford to pay.[122] The project was paused in late 1907,[123][124] and Ehrman requested that Wright provide a timetable for Unity Temple's completion, which the architect did in January 1908.[125] That February, Wright invited artists and musicians to attend a "Symposium of Art" at Unity House.[126] Wright wrote to the congregation the next month, requesting that Mueller be paid $11,000.[123][XVII] Congregants pledged $5,771 for the building's completion at their annual meeting the same month,[127][XVIII] which allowed the trustees to finally reimburse Mueller.[127][123] The plasterwork was completed in July 1908,[105] after the board of trustees had threatened to fire Mueller over his failure to finish the plastering.[128] The temple's mechanical contractor Foster & Glidden were completing the building's electrical systems by August,[129] and the pews were under construction by that September.[123][130] All of the art glass had also been installed by then.[131]
The auditorium's opening, scheduled for October 11, 1908, was postponed due to delays in manufacturing the pews.[130] The auditorium hosted its first service on October 25, 1908,[110][132] though Wright did not attend.[73][133] The building could not be formally dedicated because the organ had not been installed;[132] church officials had received bids from a dozen organ manufacturers, many of whom were discouraged by Wright's abstruse drawings.[134] The church did not hire a manufacturer until September 1908, when officials paid Coburn & Taylor $3,500 to install an organ in two months.[135][XIX] The heating system was also ineffective, and the boiler burst shortly after the auditorium opened,[136] forcing the congregation to vacate the auditorium until February 1909.[137]
Construction issues notwithstanding, congregants quickly came to like the new temple.[133] By 1909, the congregation's membership consisted of more than 140 families.[121][138] During that year, church officials largely resolved their remaining disputes with contractors, and the decorations inside were finished.[139] Johonnot resigned that June, expressing frustration that he had received little encouragement from the congregation during his tenure.[140][141] Church members refused to accept his resignation,[142][143] as he was still popular among members of the congregation.[143][144] Johonnot ultimately agreed to remain Unity Church's pastor for one more year.[145] The temple was officially dedicated on September 26, 1909,[11][146] and the congregation published a brochure for the occasion.[147] The temple had cost $60,344.55, and the congregation borrowed some $14,500 to pay for the cost overruns.[148][XX] Members pledged two-thirds, or nearly $32,200, of the remaining cost,[XXI] though it would take several years before the construction cost was fully repaid.[148]
Temple usage
Early and mid-20th century
.jpg)
After Unity Temple opened, the building's architecture attracted visitors from across the U.S.[133][149] Johonnot ultimately resigned at the end of June 1910.[143][145] The next pastor, S. G. Dunham, established a weekly "social clinics class" at the temple in late 1910;[150] he served as the pastor until early 1913.[151] William J. Taylor became Unity Temple's pastor in November 1913[152] and began giving sermons there the next month.[153] During Taylor's tenure, the congregation paid back its remaining debt of $6,000, and a congregant, E. O. Gale, donated a parsonage.[154] Taylor resigned in 1919 to become the pastor of First Universalist Church in Wausau, Wisconsin,[154][155] and he was succeeded by James W. Vallentyne.[156] The congregation celebrated the 50th anniversary of its founding with a weeklong party in early 1921.[157] Vallentyne resigned as Unity Church's pastor in 1924,[156] though he remained in Oak Park for several months.[158] D. T. Denman, who had served various congregations in Oak Park for two decades,[159] merged his congregation with that of Unity Church in 1925, becoming the combined congregation's pastor.[160]
Denman served until 1932[159] and was replaced that year with Frank D. Adams.[161] In 1935, the congregation of the Church of the Redeemer in Chicago also merged with Unity Church's congregation.[160][162] The congregation had 200 members by the mid-1940s, who met every Sunday from September to June; by then, the church was called the Unity Universalist Church.[163] John Q. Parkhurst was elected as the church's pastor in early 1945,[164] just after Adams resigned.[165] The next year, Unity House was lent to a local youth club, and its interior was redecorated to resemble a ship's lounge;[166] the club operated there for three months.[167] At the time, the congregation's membership included many of Oak Park's longtime families, in addition to congregants from neighboring towns and villages.[160] Oak Leaves reported that the building was depicted in a wide range of architectural publications and that it attracted visitors from around the world,[168] though local residents largely ignored it.[169]
Parkhurst left the congregation in 1952, and Robert M. Rice became the church's new minister.[170] By then, the congregation had 325 members who met every Sunday except in August, and the church's youth fellowship met every other Sunday.[171] The church was known simply as the Universalist Church by the late 1950s.[172] The temple also hosted visiting architects, including Wright himself, as well as several groups of students each year.[61] Rice left the building largely intact during his tenure, converting Unity House's two balconies to classrooms and adding a chapel for children.[43] In addition, in 1959, workers filled in cracks and covered up exposed rods, and they applied a stucco-like paste to the exterior.[173]
Late 20th century
1960s
By the 1960s, the concrete had begun to spall and leak; the congregation ruled out the idea of using stucco to patch the facade, and there were discussions about potentially demolishing the temple.[174] Instead, Wright's son-in-law William Wesley Peters, a principal in Taliesin Associated Architects, oversaw a restoration of the building,[174][175] which was completed in 1961 for $22,000.[174][176][XXII] Workers patched the cracks by sandblasting the concrete, placing a cement aggregate into the cracks, and applying another mixture to wear away the facade's topmost layer.[176] A sealant was then applied onto the facade,[174][176] and the building was repainted in its original color scheme.[175][176] The temple was rededicated in 1962. By then, the congregation had a religious school and a youth club, in addition to its typical Sunday services.[177] The building still attracted international visitors,[177][178] while the congregation had become known as the Unitarian Universalist Church.[50][179]
John Michiels renovated the temple's lower level in 1966 for $20,000,[XXIII] though these modifications did not follow Wright's original design.[173] The work involved refurbishing a bathroom and three classrooms.[173][180] Church officials formed a committee in 1967 to raise funds for a further renovation of Unity Temple.[181] That May, the congregation decided to open the temple for public tours five days a week[182] to raise money for the renovations.[181][182] It cost $1,000 to launch the tour program, which did not make a net profit until its second year. The skylights were subsequently replaced in 1968; since the tours had not raised sufficient funds, the women's auxiliary at Unity Temple helped fund part of the project.[173] The next year, the Edgar J. Kaufmann Foundation pledged $75,000 in matching funds toward the temple's renovation[173][180][183] after Edgar Kaufmann Jr., a former Wright acolyte, heard about the initiative.[173][184] Bill Fyfe and Michiels jointly designed a restoration plan.[184] According to Michiels, the wiring, doors, stairs, windows, and sidewalks needed repairs the most urgently.[183]
1970s
.jpg)
By 1970, the church had raised $25,000 from tours, subscriptions, and donations.[184] The restoration also received funds from the congregation itself, the National Park Service, four anonymous donors, and Alden B. Dow, in addition to tour revenue and insurance payments.[173] After Rice retired in 1970,[185] he was replaced by Gerald Krick the following March.[185] In addition, a committee was formed to oversee the restoration,[180] which was prioritized after a fire had damaged Unity House in January 1971.[180][186] A local firm, Sturr-Young Associates, was hired to repaint the auditorium in its original colors, restore the skylights, and redecorate the interior, while Frank's son Lloyd Wright was retained as a consultant.[186] The congregation was unable to raise the funds for the temple's upkeep by itself.[187][188] As such, congregants directed the board of trustees to establish a foundation to oversee the temple's restoration in December 1972.[189] The Unity Temple Restoration Corporation was formed the next year[190] as a secular entity, separate from the congregation.[191][188] The restoration group raised $500 per month from small donors and tour revenue, and it received additional funding from large donors, the federal and local governments, and the congregation.[192]
A restoration of the facade commenced in 1973[193][194] and ultimately cost $200,000.[195] Workers removed the cladding that had been added in the 1960s,[193] and they sprayed shotcrete, a type of concrete, onto the facade.[196][193] The interior was also repainted and partially rewired,[181] That year, the Kaufmann Foundation increased their grant to $250,000, at which point the church had raised $230,000.[192][197] The temple could also receive federal restoration funds because it was on the National Register of Historic Places, so the Illinois Department of Conservation requested $114,850 for interior restoration in late 1973.[198] The temple began hosting concerts later that year,[199] and it launched a concert series that helped raise money for the renovation.[200][201] To raise further money, the church sponsored field trips to Taliesin, Wright's studio in Wisconsin.[181][202] By 1975, church officials had spent more than $250,000 over the preceding eight years, but the project needed at least another $250,000.[190][203] In addition, the Restoration Foundation had gone into debt.[190]
The Restoration Foundation had nearly matched the Kaufmann grant by 1976,[181] and it wanted to create a $500,000 financial endowment for Unity Temple's continued upkeep.[191] The Kaufmann Foundation offered a grant to establish the restoration fund in April 1978, provided the Restoration Foundation raise $50,000 in eight weeks.[191][204] The next year, the Kaufmann Foundation offered another $50,000 matching grant.[188][205] Work on the foyer's renovation began in May 1979[188][205] and was nearly completed by the end of the year.[206] The foyer was restored to its original appearance, and later modifications, such as ceiling tiles and shelves, were removed.[207] The Restoration Foundation also planned to repair the leaky roof,[206] a project that ultimately cost $85,000.[195] A company from Washington, D.C., was hired to determine the original paint colors.[205]
1980s and 1990s
Charles Scot Giles became Unity Temple's pastor in 1981 following a year-long search.[208] The next year, the Restoration Foundation established a subcommittee to organize events at the temple.[209] By then, the temple received 10,000 to 15,000 annual visitors, and the Restoration Foundation was planning to spend $500,000 on the interior.[195] The auditorium was subsequently repainted gray, green-gray, yellow, and ivory, and magnesite carpets were added.[210] This work was completed in 1984, coinciding with the 75th anniversary of the temple's dedication.[211][210] The temple received a $20,000 matching grant from Domino's cofounder Thomas Monaghan in 1987,[212] which was to be used restore the temple's skylights.[213] By then, the predicted cost of the renovation had increased to $750,000.[213] In addition, the Landmarks Preservation Council of Illinois and the congregation signed an agreement to preserve the temple in January 1988.[214][215] The council received a preservation easement that limited changes to the temple.[216] The auditorium's skylights were repaired that year,[215] and a firm from Wisconsin restored the panels and replaced 40% of the glass.[217]
Despite large donations from Kaufmann, Domino's and Steelcase, officials at the Restoration Foundation reported decreasing revenue in the 1980s.[218] Foundation officials commissioned a report in 1989, which found that the roof was in very poor condition; foundation officials estimated that the roof would cost $280,000 to repair.[219][220] Though the foundation wanted to dismantle part of the roof for inspection, congregation members disputed the report's findings[220] and considered severing their relationship with the foundation.[219] Ultimately, the congregation decided to continue working with the foundation, and it ordered additional inspections of the roof.[221] During the 1990s, the temple continued to host tours for a fee,[222] along with services every Sunday.[223] Shirley Ann Ranck was named as Unity Temple's interim minister in 1991, becoming the first woman to lead the congregation in a century.[224] F. Jay Deacon became the permanent minister of the congregation in 1993,[225] and the clerestory windows were repaired that year.[226]
The congregation merged with the Beacon Unitarian Church in 1994, becoming the Unity Temple Unitarian Universalist Congregation.[227] That year, the Restoration Foundation established a volunteer program to raise further money;[228] it sought to raise $600,000 over seven years.[218] The temple started hosting avant-garde music concerts in 1996 to raise more money.[229][230] The Oak Park village government allocated $32,500 in 1999 for a study of the temple's exterior. By then, $1.5 million had been spent on restoration.[231] Simultaneously, the Restoration Foundation was raising $1.5 million in advance of the temple's centennial.[231] Unlike other state governments, Illinois did not provide historic-preservation loans at the time,[232] although it subsequently began distributing such loans.[233] State representative Angelo Saviano negotiated to secure state funding for Unity Temple after seeing the poor condition of the exterior.[234]
21st century
2000s
.jpg)
Unity Temple still had serious mechanical and structural issues in the 21st century.[235][236] The building had no air-conditioning system, leading to significant temperature fluctuations;[236] the temperature sometimes reached 125 °F (52 °C) during the summer.[237] The temple's roof sagged significantly, while the interiors were damaged by carbon-dioxide buildups and humidity.[238][235] The art glass, which had cracked due to repeated freezing and thawing over the years, needed to be repaired.[239] The concrete facade had become cracked and spalled,[235][236] and condensation had built up within the walls, causing it to rain inside.[237] There were also leaks from the drains inside the building.[194] Workers began removing concrete samples from the facade in January 2000 in preparation for a wider-ranging renovation.[240] After the Landmarks Preservation Council of Illinois labeled the building among Illinois's most endangered structures that March,[241][242] the state government gave Unity Temple $1 million for restoration.[243][242]
By late 2000, workers were about to restore the concrete.[244] This work was part of a larger, three-phase project[235][245] which would cost up to $5 million.[246] Holes were cut into the facade, and the underlying rebar was replaced.[247] Fern C. Stanley was appointed as interim pastor in August 2002.[248] After her death in May 2003,[248][249] Alan Taylor became Unity Temple's pastor the same year.[250] At that point, there were 359 congregants,[250] though Taylor helped double the congregation's size during his 18-year tenure.[251] The Landmarks Preservation Council provided $100,000 for a geothermal heating upgrade in 2004,[252][253] which was part of the first phase of a $12–15 million renovation.[253][254][255] The Restoration Foundation planned to patch the concrete[254] and add a heating, ventilation, and air conditioning system.[252][256] The third and final phase would entail restoration of the interior.[254][256] Gunny Harboe, a restoration architect based in nearby Chicago, was hired to design a restoration of the temple.[233] A test well for the heating system was installed in late 2005.[239][254] The congregation continued to host tours,[236] and it sold off furniture and furnishings to raise money.[257][258]
By the mid-2000s, the temple attracted 25–30 thousand annual visitors, many of them from outside the U.S.[259] Because parts of the temple were still being used as offices and classrooms, they could not be renovated until the congregation obtained additional space.[260] Part of the ceiling collapsed around 2008;[261] the water damage was attributed to the lack of expansion joints and a flat roof.[262] A huge piece of the left wall had cracked open,[261] and there were cracks in the facade and leaks throughout the building.[263] Unity Temple received a $200,000 matching funds grant in December 2008 through the Save America's Treasures program,[263][264] contingent on the congregation raising an equivalent amount for the temple's restoration.[262] The next year, the National Trust for Historic Preservation added Unity Temple to its America's Most Endangered Places list,[262][265] and the temple received more than $82,000 for visitor services such as tours and brochures.[266] By then, the renovation was scheduled to cost $20–25 million,[267][268] and the Restoration Foundation hoped to raise more money for restoration if the building were designated as a World Heritage Site.[269]
2010s to present
Most of the letters from the sign above Unity Temple's main entrance were stolen in 2010, shortly after the roof was replaced for $500,000.[270] After the congregation raised $3,000 to replace the letters,[271] a local preservation firm installed a new sign above the entrance.[272] The Alphawood Foundation pledged $10 million toward the temple's restoration in 2013.[273][274] The congregation also considered transferring ownership of the temple to Alphawood so that organization could help maintain the building.[274][275] By early 2015, the Restoration Foundation had about $11.5 million[276] or $12.5 million on hand.[277] Restorers drew up detailed plans to repaint the building, restore the original architectural features, and repair mechanical systems; the plans needed approval from three agencies before renovations could start.[276]
A full restoration began in 2015,[261][278] at which point the project was to cost $23 million[261] or $25 million.[278] The congregation relocated that June;[261][278] services were hosted in the nearby United Lutheran Church, while church officials also used an administrative office on South Boulevard and another office nearby.[277] The first phase of the project involved replacing the skylights, roof, and shotcrete facade. A second phase included the geothermal and HVAC system, new art glass, and new light fixtures.[278] The windows were restored in California, and new electric wiring, glass, and wood finishes were added.[279] The project was supposed to be completed in late 2016[276] but was postponed by several months because of restorers' focus on architectural details.[280] The congregation bought the nearby Oak Park Billiards building at South Boulevard in 2016, which was also renovated.[280][281]
Following a preview event in May 2017 to mark the renovation's completion,[196][279] the temple formally reopened on June 17, 2017,[282] and tours resumed that July.[283][284] About half of the construction cost had been raised at the time.[285] After a developer proposed a 28-story tower nearby in 2018, the church's board of trustees expressed concerns that the tower would cast shadows on the temple;[286] the tower was eventually canceled.[287] Alan Taylor resigned as Unity Temple's senior minister in 2021.[288] Roger Bertschausen became the senior minister in 2023,[289] and the Unity Temple Restoration Foundation was dissolved that year.[290]
Building

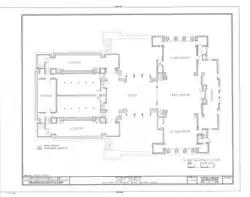
Unity Temple is located at 875 Lake Street in Oak Park, Illinois, United States.[291] Designed by Frank Lloyd Wright in the Prairie style,[292] the structure is T-shaped in plan, measuring 142 feet (43 m)[293] or 144 feet (44 m) long from north to south.[90][88] On the same city block to the east is Scoville Square. The Calvary Memorial Church is nearby to the west, across Kenilworth Avenue, while the Oak Park Public Library and Scoville Park are directly to the north, across Lake Street. In addition, the Oak Park station of the Chicago "L"'s Green Line is two blocks to the southeast.[294]
Unity Temple is one of 24[51][295] or 25 buildings that Wright designed in Oak Park,[296] as well as Wright's only significant remaining Prairie-style structure that was designed as a public building.[236] Wright used abstract motifs instead of overtly religious imagery,[223][297] and he described the building as a "temple" because its simple motifs resembled those of old temples.[298] Unity Temple is arranged around a grid of cubic "units" measuring 6+5⁄6 feet (2.1 m) on each side.[299] The building is made of four types of concrete,[238] which were poured in place[169] and used because of the material's low cost.[48][49] Concrete and crushed limestone are used in the 3-foot-thick (0.91 m) foundation walls at the perimeter of the building, as well as underneath the columns.[97] Interior and exterior walls are made of a concrete-and-gravel aggregate with embedded steel rods.[104] The concrete was poured in place.[300] The Temple Art Glass Company manufactured Unity Temple's multicolored art glass panes, which are bound together by strips of zinc.[301]
Several elements of the design are shared with the now-demolished Larkin Building, which was completed shortly before Unity Temple was.[96][297] For example, both structures included two rectangular spaces linked by an entrance pavilion,[96][302] a layout also used in Wright's Oak Park studio.[303] The Larkin Building and Unity Temple were both centered on a large communal room;[304] in both structures, visitors had to make several turns to access the room, and there were balconies around the space itself.[302] Other decorative elements, such as contrasting vertical and horizontal lines, were also visible in both structures.[302] However, the two buildings also differed in key respects, such as their functions and shapes.[305][306] Unity Temple also bears similarities to the Prairie style houses that Wright designed in Chicagoland;[307] for instance, both Unity Temple and Wright's Prairie-style houses have windows with geometric patterns.[308]
Exterior
The temple is composed of two main structures—the auditorium to the north and Unity House to the south—connected by a low, central entrance hall.[52][56][96] The arrangement allowed religious and secular activities to be kept separate.[52][300] The exterior of the auditorium section is a square measuring 64 feet (20 m) across and 47 feet (14 m) high, while Unity House measures about 90 by 50 feet (27 by 15 m) across.[293][309][c] The two-story entrance building measures 30 by 24 feet (9.1 by 7.3 m) across.[293] The facade is recessed 3 feet (0.91 m) from the southern edge of the site, 18 feet (5.5 m) from the western and eastern edges, and 23 feet (7.0 m) from the northern edge.[90][88]
Facade

The facade uses Portland cement.[238] To give the facade some texture, the top layer of cement was washed away, exposing bits of gravel underneath.[50][104][310] The wooden formwork created markings, which remained in place after the concrete had been poured. Joseph Siry described Unity Temple's exterior as a predecessor to the béton brut ("raw concrete") facades that became popular in the 1960s.[311] There are stair towers at each corner of the auditorium building, which measure 24.5 feet (7.5 m) high and 11+2⁄3 by 11+2⁄3 feet (3.6 by 3.6 m) across.[312] On each elevation of the facade, narrow slit windows separate the central portions of the facade from the staircase towers.[312][313]
The base of the facade, directly above the foundation walls, is thicker than the rest of the facade[314] and is decorated with square and rectangular moldings.[311] Above the base, the facade takes two small steps inward. On each elevation of the facade, the central portions ascend without interruption to a protruding window sill,[314] situated 22 feet (6.7 m) above ground.[89][309] There is no entrance on Lake Street; instead, there is a low wall on Kenilworth Avenue, behind which a set of stairs ascends to the entrance pavilion.[315] The words "For the worship of God / and the service of man" are inscribed in bronze letters above the entrance pavilion's doors.[310][315] There are Japanese–inspired square lanterns on the exterior, next to the entrance.[316] Next to the Kenilworth Avenue facade, there is a pier with colonnades and rectangular flower boxes.[317]
The centers of all four elevations of the auditorium are decorated with clerestory windows, which are recessed[32][318] and measure 38 by 63 inches (970 by 1,600 mm) across.[226] The clerestory windows have geometric patterns[308] and are largely made of plain glass, except for white and green panes at the tops of the windows.[319] Each set of clerestory windows is flanked by six exterior columns.[309][320] Additionally, Unity House has four columns on two of its elevations.[320] All of the columns were designed by Richard Bock[110][320] and measure 12 feet (3.7 m) tall.[99] The columns are spaced 7 feet (2.1 m) apart, aligning with the interior grid.[299] The tops of the columns are decorated with hollyhock motifs.[321] The lowest 7 feet of each column is unornamented and was cast in one piece, while the ornate 5-foot-tall (1.5 m) upper sections were cast in four pieces.[98][99] The bases of the columns are stepped inward, while the capitals are stepped outward, supporting the cantilevered roofs above.[314] The juxtaposition of the columns, and the roofs above them, may have been an allusion to older classical-style and religious buildings with pillars.[314] The facade is topped by square and rectangular copings.[311] In the 2010s, lighting was installed on the ground outside the building.[194]
Roofs
Unlike contemporary churches, Unity Temple was designed without a spire,[176][322] nor did it include typical church features such as a tower or an arched roof.[73][323] At the time of construction, church spires were increasingly outdated and were vulnerable to lightning strikes.[322] The temple is instead topped by 14,[235] 16,[196] or 17 flat roofs.[241] These are made of cinder concrete, topped with lightweight cinder-concrete tiles.[238] Each roof is composed of slabs measuring 40+2⁄3 feet (12.4 m) wide.[314] The auditorium roof's eaves extend 5 feet (1.5 m) outward from the facade's columns,[324] overhanging the adjacent lawns and paths.[306] The writer Neil Levine wrote that the cantilevered roofs created the impression that the interiors were being directed outward.[306] The edges of each roof are twice as thick as the rest of the roof, creating a low parapet wall,[324] while the eaves contrast with the facade's thick base.[314]
Interior
Wright described Unity Temple's interior as reflecting "the reality of the building—the space in which we live and not the walls and the roof".[307] The foundations and columns are made of conventional concrete;[238] the floor slabs are made of cinder concrete,[238][97] in which coal cinders are embedded into the cement.[97] The superstructure also uses steel beams, which are entirely covered with concrete.[97] The interior was more colorful than the gray exterior, in part because of the windows.[313] The walls are made of plaster, which is covered with an aggregate of sand, cement, and putty; a sealant was added to this aggregate, and the sealant was painted.[325] The interiors are also decorated with wooden boards, which not only articulate (or stylize) the interiors,[326][327] but also conceal electrical wires.[327] Joseph Siry described the decorations as "a poetic invention that sprang from Wright's own imagination",[81] while Neil Levine wrote that the decorations highlighted "space and depth, rather than mass and volume".[328] Wright also included high ceilings 'for the contemplation for the soul", as Oak Leaves described it.[329]
Entrance pavilion
An entrance pavilion, measuring 24 by 32 feet (7.3 by 9.8 m) across,[89] connects the auditorium and Unity House.[306] On the first floor, there is a foyer with a low ceiling.[306][330] an example of the compression-and-release principle that Wright espoused.[331][332] The foyer measures about 27 feet (8.2 m) wide[330] and adjoins a cloak room and a bathroom.[89] To the north, visitors make two 90-degree turns before reaching the auditorium's perimeter,[333][334] as Wright wanted visitors to go on a "path of discovery" to reach the auditorium.[310][331][332] The north wall of the foyer is decorated with wooden slats and was initially designed as a hidden exit from the auditorium, without any doorknobs or visible hinges.[330]
The foyer's west and east walls each contain a bank of six doors measuring 20 feet (6.1 m) wide, with art-glass panes; the west doors form the main entrance.[330] The south wall has a glass partition,[315] behind which Unity House's fireplace can be seen.[306] A pastor's study is located within the second floor of the pavilion and is directly connected to both the auditorium and Unity House.[335]
Auditorium
Layout
.jpg)
Wright wrote that he had "let the room inside be the architecture outside" by designing the rest of the temple around the auditorium.[48][336] The auditorium at the north end of the temple has either 380[337] or 400 seats.[169][200][338] It is shaped like a Greek cross,[310][339] with a freestanding pier at each corner.[306][326][340] This contrasted with other churches in Oak Park, which had naves that were significantly longer than their width.[64] Wright wanted congregants to circulate around the auditorium's perimeter, rather than entering it from a central aisle,[341] and he wanted the piers to draw visitors' attention inward.[340] The piers are connected by "cloisters", hallways 4 feet (1.2 m) beneath the auditorium's main floor.[89][342][315] According to Wright, this preserved the auditorium's "quiet and dignity" by allowing people to circulate around the room unnoticed.[343] The bases of the piers contain small anterooms,[342] and staircases ascend to the main floor and balcony level.[89][343] The piers also include pipes and ducts for heating and ventilation.[89][326] The piers are decorated with wooden strips that meet at right angles.[344]
At the center of the cross is a square measuring 33 feet (10 m) on each side,[345] with a pulpit at the center.[346] The pulpit is arranged so it is no farther than 45 feet (14 m)[194][338] or 75 feet (23 m) from any seat.[329] In front of the pulpit is a railing with wooden boards across its surface and a wooden coping at its top. The center of the railing, in front of the pulpit's lectern, is slightly raised. There is a bench behind the railing, as well as lamps to either side.[347] The southern wall contains a choir loft directly above the auditorium's entrance, which extends to the balcony level.[89] The choir screen consists of a series of vertical slits and interlocking geometric planes.[346][348] The screen protrudes from the south wall, providing space for the organ pipes behind them.[348] There is a door to the pastor's study behind the choir screen.[335]

The pews in the auditorium are variants of a mass-produced model of pews manufactured by the American Seating Company.[130] On three sides of the main floor are raised pews, which seat 54 people each;[346] they are raked, sloping down toward the pulpit.[349] The layout also allows audience members to face each other.[297][331][350] Exits from either side of the pulpit lead directly to the entrance pavilion.[346][351][352] This eliminated the need for congregants to turn away from the pulpit to leave, as was customary in older churches,[169][346][351] and it allowed congregants to mingle with the pastor or other speakers at the pulpit.[352] According to architectural critic Blair Kamin, the layout makes it so that "one enters as an individual and leaves as a member of a community".[194] The exit doors are normally closed during services.[43] Since 2017, there has been a video screen behind the pulpit.[285]
The balcony is about 13.5 feet (4.1 m) or two units above the ground[353] and also surrounds the auditorium on three sides.[89][342] The balcony has 153 seats in total,[89] which are more steeply raked than those on the main level.[349] The balcony is illuminated by spherical lamps, and there are wooden bands on the balcony's railings and on the soffit along the balcony's underside.[349] The architectural historian Robert Twombly wrote that the balconies gave the auditorium an intimate feel while allowing visitors to feel like they were part of a larger "majestic whole".[211]
Decorations
The decorations in the auditorium, such as the windows and chandeliers, are generally designed with cruciform motifs, recalling its overall shape.[350] Generally, the lower part of the room is painted in darker shades of yellow and green, while the upper part is painted in lighter shades. The baseboards and the piers' pedestals were left unpainted, since Wright anticipated that this would give the room a more somber ambiance.[319] Natural light is provided through ceiling skylights and clerestories,[313][318] as well as the narrow slit windows.[300][313] According to Wright, the windows were intended "to get a sense of a happy cloudless day into the room".[340][339][313] Other than the slit windows and the door to the foyer, the lower part of the auditorium has no openings.[300] Wright had designed planters or urns for the auditorium, but church officials refused to accept them.[354] The auditorium also has several hardwood chairs, built in 2003 to replace the original Wright–designed chairs.[258]
The auditorium's ceiling is 27 feet (8.2 m) high.[353] The center of the ceiling is topped by amber skylights,[306] which are surrounded by bands of wood.[327] The roof is supported by solid concrete beams oriented east–west, while the north–south beams are of hollow concrete.[355] Inset within this grid of beams are 25 square skylight panels.[313][355][215] Each panel measures 4+5⁄6 feet (1.5 m) across, with 83 pieces of glass,[215] and is decorated with a fork-shaped motif pointing in one of the four cardinal directions.[356] A New York Times article likened the skylights' designs to Piet Mondrian's artwork.[211] The space is also illuminated by overhanging spherical chandeliers flanked by cubic lamps,[80][357] and the perimeter of the ceiling is made of oak boards.[327]
Unity House

The interior of Unity House is painted in various shades of green, yellow, and brown.[325] Unity House's primary interior space measures about 82+5⁄6 by 27+1⁄6 feet (25.2 by 8.3 m) across, corresponding to approximately 12 by 4 units.[345] There is a square hall at the center, measuring about 30 feet (9.1 m)[335] or 33+5⁄6 feet (10.3 m) on each side.[345] There are balconies to the west and east of the central hall, on the same story as the auditorium's lower seating level.[335][358] The balconies are supported by I-beams and contain small columns with wooden sconces,[358] in addition to railings with wood strips.[327] The columns have vertical wood strips along their shafts and horizontal wood strips at their capitals.[327] The spaces under each balcony are illuminated by spherical lamps.[358] The balconies and the spaces beneath them were originally used as classrooms.[335]
There are square closets at each corner of Unity House's main room, measuring about 1 unit wide.[345] On the southern wall of the central hall is a recess with a fireplace measuring about 13+1⁄6 feet (4.0 m) wide;[345] this feature recalled many of Wright's residential designs, which also had central fireplaces.[292] On the northern wall, there are three casement windows facing the pastor's study.[335]
Unity House primarily receives natural light from skylights in the ceiling.[300] The roof trusses are supported by eight columns arranged in a 2×4 grid.[345] The ceiling is divided into rectangular coffers measuring 15 by 4.5 feet (4.6 by 1.4 m) across. Each coffer has a skylight with four glass panes, which are either opaque or tinted in various shades of yellow, green, and brown.[301] There are seven skylights in total, all of which are surrounded by wood strips.[327][335] Rectangular and square motifs, reminiscent of the floor plans, are used in the skylights.[126]
Mechanical features
Unity Temple originally had a coal-fired steam boiler, in addition to concrete ducts that were supposed to distribute heat.[255][256][359] The ducts proved ineffective at carrying air,[359] and as such, steam radiators were installed shortly after the temple was finished.[255][256][136] A hot-water system was also installed within half a year of the temple's completion; it remained in use through the 21st century.[239] The coal-fired boiler was replaced with an oil-fired boiler in the early 20th century, and a gas generator was added later in the century.[255] Since the 2010s, the church has been heated by a geothermal heating system,[360] which consists of nine 500-foot-deep (150 m) wells on the lawn just north of the church.[261] This system includes ice-storage space and a set of geothermal wells.[256][255]
Clergy, services, and programs
Clergy
As of 2024, Roger Bertschausen is the senior minister at Unity Temple,[361] having joined as a "developmental minister" in 2023.[289] The associate minister is Emily Gage,[361] who joined as the minister of faith development in 2008.[362] The church hosts services every Sunday at 9:00 a.m. and 10:45 a.m.[363] In addition, it hosted an annual meeting every May.[177] Senior pastors and senior ministers over the years have included:
| Senior pastor/minister | Start year | End year | Refs. |
|---|---|---|---|
| A. H. Sweetser | 1871 | 1872 | [13] |
| J. O. M. Hewitt | 1872 | 1875 | [13] |
| John W. Hinds | 1875 | 1878 | [13] |
| LeGrand Powers | 1878 | 1879 | [13] |
| N. S. Sage[d] | 1879 | 1881 | [13] |
| H. D. L. Webster | 1882 | 1883 | [13] |
| Augusta Jane Chapin | 1886 | 1891 | [13] |
| Rodney F. Johonnot | 1892 | 1910 | [16][145] |
| S. G. Dunham | c. 1910 | 1913 | [150][151] |
| William J. Taylor | 1913 | 1919 | [154] |
| James W. Vallentyne | 1919 | 1924 | [156] |
| Daniel T. Denman | 1925 | 1932 | [159] |
| Frank D. Adams | 1932 | 1945 | [161][165] |
| John Q. Parkhurst | 1945 | 1952 | [164][170] |
| Robert M. Rice | 1952 | 1970 | [170][185] |
| Gerald Krick | 1971 | c. 1980 | [185] |
| Charles Scot Giles | 1981 | 1990 | [208][225] |
| Shirley Ann Ranck | 1991 | c. 1992 | [224] |
| F. Jay Deacon | 1993 | c. 2002 | [225] |
| Fern C. Stanley | 2002 | 2003 | [248] |
| Alan Taylor | 2003 | 2021 | [250][288] |
| Roger Bertschausen | 2023 | present | [289] |
Events and tours
Over the years, Unity Temple has been included in tours of Wright's Oak Park buildings,[364] such as tours provided by the Frank Lloyd Wright Home and Studio Foundation (later the Frank Lloyd Wright Trust).[365] Unity Temple is also part of the annual "Wright Plus" walking tour, which includes visits to several buildings designed by Wright.[295][366] By 2017, the Frank Lloyd Wright Trust hosted tours of Unity Temple six days a week, in addition to more detailed tours once a week.[284] During the COVID-19 pandemic, virtual tours of the temple were also hosted.[367] Since 2018, Unity Temple has been part of the Frank Lloyd Wright Trail, a collection of 13 buildings designed by Wright in Illinois.[368]
The church began hosting concerts in late 1973.[199] Musicians frequently requested permission to perform there,[200][369] prompting the church to launch a regular concert series in 1974.[337] The series, which included music from a variety of genres, raised over $50,000 for the temple in its first quarter-century.[370] The temple also hosted theatrical, ballet, and opera performances.[191] In addition, in 1996, the church started hosting avant-garde music performances as part of its Creative and Improvised Music program,[229][230] which was hosted there for two years.[371]
Over the years, Unity Temple has hosted meetings for the local community,[138] such as meetings for other Universalist congregations,[372] conventions of the National Young People's Christian Union,[373] and dinners.[172] The church hosted a program called "Ways of Mankind" during 1954, in which members of the public were invited to listen to, and discuss, radio broadcasts about selected topics.[374] The church has also invited guest speakers, such as in 1964 when four liberal pastors gave speeches there.[375] Other programs at the church have included "Constructive Kids", an architectural program for primary-school children.[376] Over the years, Unity Temple has hosted public exhibits, such as a 1963 exhibit about Wright's architecture[179] and a 1978 exhibit of Wright's architectural drawings.[377]
Impact
When Unity Temple was completed, it differed significantly from other local churches' designs.[79] Wright considered Unity Temple to be his first completed concrete-building design,[49][378] and it was reportedly the first major reinforced-concrete building constructed in the U.S.[61][223][379] The temple is also an early example of a building with an exposed-concrete facade,[86][160] contrasting with earlier concrete structures in Europe, whose surfaces were typically concealed behind cladding.[86] Paul Gapp of the Chicago Tribune wrote retrospectively that Wright's use of concrete was "a daring risk at the time".[379]
Unity Temple has been cited as an early example of modern architecture,[3] with Wright citing it as his first modern-style building.[292] The Oak Park Wednesday Journal wrote in 2017 that Unity Temple was "considered by many to be the world's first 'modern' building".[380] According to Wright's wife Olgivanna, after the temple was finished, foreign architects copied elements of its design.[381] Unity Temple's design has been credited with having helped inspire the European architects Le Corbusier, Walter Gropius, Ludwig Mies van der Rohe, and Peter Behrens.[382] In addition, Unity Temple has inspired the design of structures such as the Maisonneuve Fire Station in Montreal,[383] the Emerson Unitarian Church in Houston,[384] and the Kunstmuseum Den Haag building in The Hague.[385] The emphasis of materials and light in Unity Temple's design helped inspire later buildings such as Notre-Dame du Haut and the First Unitarian Church of Rochester.[386]
Reception

Upon the temple's completion, images of the auditorium were published in Inland Architect and News Record magazine.[133] Local newspaper Oak Leaves called it "the most radical departure in traditional church architecture ever attempted",[79] and the same newspaper said the "severe simplicity of the exterior of the building [...] gives one little hint of the beauty of the interior".[118] A writer for the Chicago Daily Tribune said Unity Temple's modern design represented "the present, the twentieth century, the modern spirit, thought, faith, the modern freedom, the modern ideal".[387] Architectural Record praised the acoustics as "not sonorous and [...] only slightly reverberant".[369] Conversely, Winthrop Kendall regarded the building as unattractive, "without a vine or a tree to relieve its massive monotony",[388] and disappointed congregants likened the temple to a Mayan handball court.[389]
In 1928, a writer for The Baltimore Sun described Unity Temple as one of a few buildings that expressed Wright's "idea of the thing—made to sing to heaven",[390] while the Wausau Daily Herald said the design "gave rise to the cubical monolith".[391] A writer for the Manchester Guardian, in 1939, described Unity Temple as one of Wright's "pedigree buildings".[3] A St. Louis Post-Dispatch article in 1961 said Unity Temple still "looks quite fresh and contemporary today",[174] and The Buffalo News likened the building to a "visiting spaceship" in 1981,[392] and architectural historian Vincent Scully called it "small, yet large" and one of the nation's most beautiful buildings.[211] After the auditorium's interior restoration was completed in the 1980s, a Boston Globe editor said the auditorium was "almost as shocking as the restoration of the Sistine Chapel".[393] The architectural critic Paul Goldberger perceived Unity Temple as representing "a kind of symbolic gathering and communal presence, monumental dignity in a public place",[394] calling it one of "the greatest religious structures" of the 20th century.[395]
A writer for The Chronicle of Higher Education in 1996 contrasted Unity Temple's "blocky" massing with the low-roofed design of Robie House on Chicago's South Side.[352] David M. Sokol, in his 2008 book The Noble Room, wrote that the temple's "majesty and importance" was partially derived from the fact that it was not arranged as typical church buildings had been.[102] A writer for The Washington Post wrote that the building may have been one of Wright's favorite designs because it was "imposing yet elegant".[51] After the temple's renovation was finished in 2017, a Curbed writer said the building's imposing concrete facade "belies what's inside",[332] while a Chicago Tribune writer called the auditorium "magnificent sanctuary noted for its high skylights of amber-tinted leaded glass".[284] Blair Kamin wrote for The Wall Street Journal in 2025 that the temple's exterior was "monolithic, not monotonous" because of its use of textured concrete and geometric motifs, while "the sanctuary is as serene as architecture gets".[310]
Unity Temple has also received architectural accolades. In 1959, the American Institute of Architects (AIA) deemed Unity Temple as one of 17 buildings designed by Wright that merited the highest levels of architectural preservation.[396][397] A 1991 poll in Architectural Record magazine ranked Unity Temple as one of the 10 most significant buildings in the United States from the previous century.[261] The temple's 2017 restoration received several awards, including the American Institute of Architects' Crombie Taylor Award,[398] the World Monuments Fund's Modernism Prize,[399] the Urban Land Institute's Vision Award,[400] and the Richard H. Driehaus Foundation's Preservation Award.[401]
Media

Wright's building has been the subject of several books. Unity Temple was detailed in Ernst Wasmuth's 1910 Wasmuth Portfolio.[402][403] The historian Joseph Siry wrote a book about the church's architecture in 1996,[404] while Robert McCarter published another book the following year with photographs of the temple.[405] Patrick F. Cannon published a book about the temple through the Unity Temple Restoration Foundation in 2009,[406] which received an accolade from the Independent Publisher Book Awards in 2023.[407]
The Library of Congress acquired photographs and documents about Unity Temple in 1967.[408] Additionally, the Museum of Modern Art (MoMA) in New York displayed images of the temple in 1965[409] and 1988.[410] Local photographer Redd Griffin created a slideshow with images of Unity Temple in the 1970s,[411] and drawings of the temple have also been displayed at the Phoenix Art Museum in Arizona[412] and at the Oak Park Library.[413] The temple was detailed in the Scottish filmmaker Murray Grigor 's 1982 documentary about Wright's Oak Park buildings.[414] In addition, the 2020 documentary Unity Temple: Frank Lloyd Wright's Modern Masterpiece, produced by Lauren Levine and narrated by Brad Pitt, details the temple's renovation.[415][416]
Landmark designations
Unity Temple was added to the National Register of Historic Places (NRHP) in April 1970;[417] such a designation allowed properties to receive federal funds for restoration.[186][418] The building was designated a National Historic Landmark on December 30, 1970,[419] and was re-added to the NRHP at that time.[420] A plaque commemorating the National Historic Landmark designation was installed in June 1971.[421] Oak Park officials considered including Unity Temple as part of a municipal historic district in 1971.[422] When the district was created the next year, however, it excluded the temple.[423]
The United States Department of the Interior nominated Unity Temple and nine other Wright–designed buildings to the World Heritage List in 2015;[424][425] the buildings had previously been nominated in 2008.[426] UNESCO added eight properties, including Unity Temple, to the World Heritage List in July 2019 under the title "The 20th-Century Architecture of Frank Lloyd Wright".[427]
See also
- List of Frank Lloyd Wright works
- List of National Historic Landmarks in Illinois
- List of World Heritage Sites in the United States
- National Register of Historic Places listings in Cook County, Illinois
- Unitarian Meeting House, Shorewood Hills, Wisconsin
- Unitarian Universalist Association
References
Notes
Explanatory notes
- ^ a b c d e f g h i j k l m n o p q r s t u v Johnston, Louis; Williamson, Samuel H. (2023). "What Was the U.S. GDP Then?". MeasuringWorth. Retrieved November 30, 2023. United States Gross Domestic Product deflator figures follow the MeasuringWorth series.
- ^ 1634–1699: McCusker, J. J. (1997). How Much Is That in Real Money? A Historical Price Index for Use as a Deflator of Money Values in the Economy of the United States: Addenda et Corrigenda (PDF). American Antiquarian Society. 1700–1799: McCusker, J. J. (1992). How Much Is That in Real Money? A Historical Price Index for Use as a Deflator of Money Values in the Economy of the United States (PDF). American Antiquarian Society. 1800–present: Federal Reserve Bank of Minneapolis. "Consumer Price Index (estimate) 1800–". Retrieved February 29, 2024.
- ^ Oak Leaves April 27, 1907, p. 102, cites a significantly different dimension of 90 by 40 feet (27 by 12 m) for Unity House.
- ^ There was no official pastor from 1879 to 1881, though Sage appeared the most frequently.
Inflation figures
- ^ The total cost is equivalent to $311,000, of which Gale provided $127,000.[a]
- ^ Equivalent to $526,000 in 2023[a]
- ^ Equivalent to $1,315,000 in 2023[a]
- ^ Equivalent to between $263,000 and $289,000 in 2023[a]
- ^ Equivalent to $789,000 in 2023[a]
- ^ Equivalent to $920,000 in 2023[a]
- ^ Equivalent to $1,183,000 in 2023[a]
- ^ Equivalent to $171,000 in 2023[a]
- ^ Equivalent to $210–263 thousand in 2023[a]
- ^ The cost was equivalent to $1,052,000, while the money on hand was equivalent to $815,000 in 2023[a]
- ^ Equivalent to $920,000 in 2023[a]
- ^ Equivalent to $952,000 in 2023[a]
- ^ Equivalent to $819,056.48 in 2023[a]
- ^ Equivalent to $31,603 in 2023[a]
- ^ Equivalent to $16,411 in 2023[a]
- ^ Equivalent to $382 in 2024[b]
- ^ Equivalent to $263,000 in 2023[a]
- ^ Equivalent to $138,000 in 2023[a]
- ^ Equivalent to $84,000 in 2023[a]
- ^ The final cost is equivalent to $1,464,000 in 2023. The congregation borrowed the equivalent of $352,000.[a]
- ^ Equivalent to $781,000 in 2023[a]
- ^ Equivalent to $172,000 in 2023[a]
- ^ Equivalent to $134,000 in 2023[a]
Citations
- ^ a b "National Register Information System". National Register of Historic Places. National Park Service. July 9, 2010.
- ^ "Unity Temple". National Historic Landmark summary listing. National Park Service. Archived from the original on August 31, 2003. Retrieved July 22, 2008.
- ^ a b c "The American "Pioneer" Architect". The Manchester Guardian. May 9, 1939. p. 10. ProQuest 484618839.
- ^ Sokol 2008, p. 6.
- ^ a b c d Oak Leaves April 27, 1907, p. 100.
- ^ Andreas, Alfred Theodore (1884). History of Cook County, Illinois: From the Earliest Period to the Present Time. A.T. Andreas. Retrieved January 27, 2025.
- ^ a b c d Sokol 2008, p. 7.
- ^ a b c Sokol 2008, pp. 7–8.
- ^ a b c d e f Siry 1996, p. 52.
- ^ a b c "A Suburban Sanctuary". Chicago Tribune. August 12, 1872. p. 6. ISSN 1085-6706. Retrieved January 28, 2025 – via newspapers.com.
- ^ a b c d e f g McCarter et al 1997, p. 10.
- ^ a b c Sokol 2008, p. 9.
- ^ a b c d e f g h i j k l m n Oak Leaves April 27, 1907, p. 101.
- ^ "Suburban Matters". The Inter Ocean. May 2, 1886. p. 14. Retrieved January 28, 2025 – via newspapers.com.
- ^ Sokol 2008, pp. 10–11.
- ^ a b Siry 1996, p. 52; Sokol 2008, p. 12.
- ^ Sokol 2008, p. 12.
- ^ a b Siry 1996, p. 59.
- ^ a b Sokol 2008, pp. 13–14.
- ^ "Churches". The Construction News. Vol. 12, no. 14. April 6, 1901. p. 228. ProQuest 128400600.
- ^ Siry 1996, p. 64.
- ^ Siry 1996, pp. 7–8; Sokol 2008, pp. 14–15.
- ^ Siry 1996, p. 70; Sokol 2008, pp. 15–16.
- ^ a b Siry 1996, p. 70; Sokol 2008, p. 18.
- ^ "Lightning Destroys Churches". The Pittsburgh Post. June 5, 1905. p. 5. Retrieved January 29, 2025 – via newspapers.com; "Three Churches Struck by Bolts". Chicago Tribune. June 5, 1905. p. 5. ISSN 1085-6706. Retrieved January 29, 2025 – via newspapers.com.
- ^ a b "Lightning Causes Destructive Fires". The Inter Ocean. June 5, 1905. p. 3. Retrieved January 28, 2025 – via newspapers.com.
- ^ Sokol 2008, p. 19.
- ^ a b Siry 1996, pp. 70–71; Sokol 2008, pp. 20–21.
- ^ a b Oak Leaves April 27, 1907, pp. 101–102.
- ^ a b c Sokol 2008, p. 25.
- ^ "Building Notes of the Week". The Inter Ocean. June 25, 1905. p. 22. Retrieved January 30, 2025 – via newspapers.com.
- ^ a b Sokol 2008, p. 22.
- ^ a b Sokol 2008, pp. 23–24.
- ^ a b c d e Siry 1996, p. 71.
- ^ a b Sokol 2008, p. 24.
- ^ Siry 1996, p. 71; Sokol 2008, p. 26.
- ^ Siry 1996, pp. 71–72; Sokol 2008, p. 28.
- ^ a b Sokol 2008, p. 37.
- ^ a b c Siry 1996, p. 74.
- ^ a b Siry 1996, p. 73.
- ^ a b Sokol 2008, p. 39.
- ^ a b "Chicago". The Construction News. Vol. 20, no. 13. September 23, 1905. p. 235. ProQuest 128406218.
- ^ a b c d e "The Frank Lloyd Wright Legend". Oak Leaves. June 27, 1957. pp. 30, 31. Retrieved February 3, 2025 – via River Forest Public Library.
- ^ Wright 2005, p. 152.
- ^ Sokol 2008, p. 38.
- ^ a b c d Siry 1996, p. 108.
- ^ Sokol 2008, p. 61.
- ^ a b c Wright 2005, p. 154.
- ^ a b c Saint 2003, p. 162.
- ^ a b c d "Unity Church Draws Architects to Village". Oak Leaves. June 25, 1964. p. 7. Retrieved February 3, 2025 – via River Forest Public Library.
- ^ a b c Jeffrey, Laura Stassi (May 3, 2009). "Oak Park, Ill.: A Village Two American Icons Called Home". The Washington Post. ISSN 0190-8286. Retrieved February 8, 2025.
- ^ a b c d e f g Siry 1996, pp. 81, 83.
- ^ Hansen, Harry (April 6, 1932). "The First Reader". The Virginian-Pilot. p. 6. Retrieved February 3, 2025 – via newspapers.com.
- ^ Sokol 2008, p. 40; Wright 2005, p. 153.
- ^ Siry 1996, p. 74; Sokol 2008, p. 40; Wright 2005, pp. 153–154.
- ^ a b Sawyers, June (August 16, 1991). "The Wright Oak Park Legacy". Chicago Tribune. ISSN 1085-6706. Retrieved January 31, 2025.
- ^ Wright 2005, p. 158.
- ^ Siry 1996, p. 83.
- ^ Sokol 2008, pp. 41–43.
- ^ a b c Wright 2005, pp. 154–155.
- ^ a b c "Frank Lloyd Wright in Surprise Visit to Village". Oak Leaves. November 21, 1957. p. 6. Retrieved February 3, 2025 – via River Forest Public Library.
- ^ a b Sokol 2008, p. 59.
- ^ National Park Service 1970, p. 4.
- ^ a b Siry 1996, pp. 96–97.
- ^ Siry 1996, pp. 101–103.
- ^ Siry 1996, p. 80.
- ^ a b Sokol 2008, p. 45.
- ^ Siry 1996, p. 127.
- ^ a b Sokol 2008, p. 47.
- ^ Siry 1996, pp. 127–128.
- ^ a b Siry 1996, p. 128.
- ^ Sokol 2008, p. 51.
- ^ a b c Cypret, Randy (July 24, 1975). "Unity designed to solve problems". News Journal. p. 33. Retrieved February 6, 2025 – via newspapers.com.
- ^ a b Siry 1996, p. 128; Sokol 2008, p. 52.
- ^ a b c Siry 1996, pp. 129–130; Sokol 2008, pp. 52–54.
- ^ a b Guarino, Jean (August 7, 1991). "Wright community never materialized". Oak Leaves. p. 81. Retrieved February 7, 2025.
- ^ Siry 1996, p. 130; Sokol 2008, p. 55.
- ^ Sokol 2008, p. 56.
- ^ a b c Siry 1996, p. 130.
- ^ a b Schrenk 2021, p. 151.
- ^ a b Siry 1996, p. 137.
- ^ Siry 1996, p. 138; Sokol 2008, p. 75.; Wright 2005, p. 159.
- ^ a b c Siry 1996, p. 138.
- ^ Siry 1996, p. 138; Sokol 2008, p. 76.
- ^ a b Siry 1996, p. 139; Sokol 2008, p. 77.
- ^ a b c Saint 2003, p. 163.
- ^ Sokol 2008, p. 78.
- ^ a b c Sokol 2008, p. 79.
- ^ a b c d e f g h i j k Oak Leaves April 27, 1907, p. 102.
- ^ a b c d Siry 1996, p. 139.
- ^ Schrenk 2021, pp. 151, 154.
- ^ a b c Siry 1996, p. 157.
- ^ a b c Sokol 2008, pp. 81–82.
- ^ a b Sokol 2008, p. 80.
- ^ Siry 1996, pp. 140–141.
- ^ a b c d Levine 1996, p. 40.
- ^ a b c d e Siry 1996, p. 140.
- ^ a b c Ferry 1907, p. 98.
- ^ a b c Siry 1996, p. 152.
- ^ Ferry 1907, p. 99.
- ^ Siry 1996, pp. 143–144.
- ^ a b c Sokol 2008, p. 83.
- ^ Siry 1996, p. 144; Sokol 2008, pp. 84–85.
- ^ a b c Siry 1996, p. 145.
- ^ a b Siry 1996, p. 146.
- ^ Sokol 2008, p. 85.
- ^ a b Sokol 2008, p. 86.
- ^ Sokol 2008, p. 87.
- ^ a b Sokol 2008, pp. 122–123.
- ^ a b c Schrenk 2021, p. 154.
- ^ Sokol 2008, p. 156.
- ^ a b Sokol 2008, p. 89.
- ^ Sokol 2008, p. 95.
- ^ Sokol 2008, p. 92.
- ^ Siry 1996, p. 142.
- ^ Sokol 2008, pp. 96–97.
- ^ Sokol 2008, p. 99.
- ^ a b Sokol 2008, p. 100.
- ^ Siry 1996, pp. 169–170.
- ^ a b Sokol 2008, p. 103.
- ^ a b Sokol 2008, p. 149.
- ^ Sokol 2008, pp. 105–107.
- ^ a b c d Siry 1996, p. 171.
- ^ Sokol 2008, p. 108.
- ^ Sokol 2008, pp. 101–102.
- ^ a b Siry 1996, p. 168.
- ^ a b Sokol 2008, p. 111.
- ^ Sokol 2008, p. 115.
- ^ Sokol 2008, p. 116.
- ^ a b c Sokol 2008, pp. 119–120.
- ^ Sokol 2008, pp. 120–121.
- ^ a b "Church Built of One Piece: Unity Temple at Oak Park Opens Structure Which is Like No Other Shrine in the World". Chicago Daily Tribune. October 26, 1908. p. 1. ISSN 1085-6706. ProQuest 173399990.
- ^ a b c d Siry 1996, pp. 192–193.
- ^ Sokol 2008, pp. 124–125.
- ^ Sokol 2008, p. 131.
- ^ a b Sokol 2008, pp. 138–139.
- ^ Sokol 2008, pp. 143–144.
- ^ a b Siry 1996, p. 103.
- ^ Sokol 2008, p. 153.
- ^ "Rebukes Church; Pastor Resigns". Chicago Tribune. June 7, 1909. p. 8. ISSN 1085-6706. Retrieved February 2, 2025 – via newspapers.com.
- ^ Sokol 2008, pp. 150–151.
- ^ "Force Pastor to Think Again". Chicago Tribune. June 12, 1909. p. 3. ISSN 1085-6706. Retrieved February 3, 2025 – via newspapers.com.
- ^ a b c Sokol 2008, p. 152.
- ^ "Members of Church Differ as to Pastor's Resignation". Chicago Tribune. June 8, 1909. p. 6. ISSN 1085-6706. Retrieved February 3, 2025 – via newspapers.com.
- ^ a b c "Asks Favor for Successor". Chicago Tribune. June 27, 1910. p. 7. ISSN 1085-6706. Retrieved February 3, 2025 – via newspapers.com.
- ^ "Unity Church Is Dedicated". Chicago Tribune. September 27, 1909. p. 14. ISSN 1085-6706. Retrieved February 2, 2025 – via newspapers.com; "Temperance Theme of Many Sermons". The Inter Ocean. September 27, 1909. p. 4. Retrieved February 2, 2025 – via newspapers.com.
- ^ Sokol 2008, p. 155.
- ^ a b Siry 1996, p. 193.
- ^ "Getting Ready for New C. C. Church". The Zion City Independent. April 9, 1915. p. 1. Retrieved February 3, 2025 – via newspapers.com.
- ^ a b "Hold 'Social Clinics' Class". Chicago Tribune. November 27, 1910. p. 8. ISSN 1085-6706. Retrieved February 3, 2025 – via newspapers.com.
- ^ a b "Armour Buys Eastern Site; Plans New Packing Plant?". Chicago Tribune. March 16, 1913. p. 5. ISSN 1085-6706. Retrieved February 3, 2025 – via newspapers.com.
- ^ "New Pastor Is Installed". The Inter Ocean. November 17, 1913. p. 3. Retrieved February 2, 2025 – via newspapers.com.
- ^ "New Pastor Takes Unity Church Pulpit". The Inter Ocean. December 15, 1913. p. 9. Retrieved February 2, 2025 – via newspapers.com.
- ^ a b c "Rev. William J. Taylor". Wausau Pilot. January 14, 1919. p. 1. Retrieved February 3, 2025 – via newspapers.com.
- ^ "Restrictions on Egg Coal Are Now Removed". Sun-Journal. December 30, 1918. p. 8. Retrieved February 3, 2025 – via newspapers.com.
- ^ a b c "Dr. James W. Vallentyne Will Come to Portland After Fine Record in West". Portland Press Herald. December 30, 1924. pp. 1, 2. Retrieved February 3, 2025 – via newspapers.com.
- ^ "Unity Church Is Fifty". Oak Leaves. February 26, 1921. p. 38. Retrieved February 3, 2025 – via River Forest Public Library.
- ^ "Rev. James Vallentyne Assumes Duties Here". Portland Press Herald. March 2, 1925. p. 19. Retrieved February 3, 2025 – via newspapers.com.
- ^ a b c "Call of Farm Penetrates to Oak Park Pulpit: Dr. Denman to Retire After 45 Years". Chicago Daily Tribune. April 24, 1932. p. F6. ISSN 1085-6706. ProQuest 181316732. Retrieved February 3, 2025 – via newspapers.com.
- ^ a b c d "Unity Church Resumes Services on Sunday". Oak Leaves. September 5, 1946. p. 46. Retrieved February 3, 2025 – via River Forest Public Library.
- ^ a b "Dr. F. D. Adams Accepts Call to Oak Pk. Church". Chicago Tribune. Associated Press. November 22, 1932. p. 6. ISSN 1085-6706. Retrieved February 3, 2025 – via newspapers.com; "Parish Banquets Departing Pastor". Detroit Free Press. December 10, 1932. p. 3. Retrieved February 3, 2025 – via newspapers.com.
- ^ "Dr. Lewis Fisher Dies; Pastor and Ex-College Head". Chicago Tribune. March 23, 1936. p. 14. ISSN 1085-6706. Retrieved February 3, 2025 – via newspapers.com.
- ^ "Unity Universalist Church". Oak Leaves. March 9, 1944. p. 57. Retrieved February 3, 2025 – via River Forest Public Library.
- ^ a b "Unity". Oak Leaves. March 1, 1945. p. 47. Retrieved February 3, 2025 – via River Forest Public Library.
- ^ a b "Unity Church". Oak Leaves. March 8, 1945. p. 77. Retrieved February 3, 2025 – via River Forest Public Library.
- ^ "Youths to Open Suburb Center With Ship Motif". Chicago Daily Tribune. June 23, 1946. p. W12. ISSN 1085-6706. ProQuest 177208330.
- ^ "Suburban Group on Search for Anchor Inn Site". Chicago Tribune. September 8, 1946. p. 14. ISSN 1085-6706. Retrieved February 3, 2025 – via newspapers.com.
- ^ "Unity Universalist Church Opens for 78th Year". Oak Leaves. September 9, 1948. p. 30. Retrieved February 3, 2025 – via River Forest Public Library.
- ^ a b c d "Unity Temple a masterpiece in concrete". Oak Leaves. June 25, 1969. p. 12. Retrieved February 3, 2025 – via River Forest Public Library.
- ^ a b c "Rev. Parkhurst Accepts Call to Church in Joliet". Oak Leaves. January 10, 1952. p. 9. Retrieved February 3, 2025 – via River Forest Public Library.
- ^ "Unity Universalist". Oak Leaves. June 21, 1951. p. 82. Retrieved February 3, 2025 – via River Forest Public Library.
- ^ a b "Universalist Church". Oak Leaves. June 27, 1957. p. 42. Retrieved February 3, 2025 – via River Forest Public Library.
- ^ a b c d e f g Cypret, Randy (August 3, 1975). "Unity Temple restoration incomplete". News Journal. p. 6. Retrieved February 4, 2025 – via newspapers.com.
- ^ a b c d e McCue, George (November 26, 1961). "New Life for Two Historic Buildings". St. Louis Post-Dispatch. p. 36. Retrieved January 31, 2025 – via newspapers.com.
- ^ a b "Universalists Hold Annual Holiday Bazaar". Oak Leaves. November 16, 1961. p. 33. Retrieved February 3, 2025 – via River Forest Public Library.
- ^ a b c d e Nicholas, Dorothea (October 4, 1962). "Frank Lloyd Wright Church Is Architectural Shrine: Heritage Unit to Pay Tribute to Sanctuary". Chicago Daily Tribune. pp. 7.1, 7.4. ISSN 1085-6706. ProQuest 182864285 – via newspapers.com.
- ^ a b c "The Unitarian Universalist Church". Oak Leaves. June 21, 1962. p. 27. Retrieved February 3, 2025 – via River Forest Public Library.
- ^ "Unity Church is World Famous". Chicago Daily Tribune. November 23, 1961. p. W_B16. ISSN 1085-6706. ProQuest 183043735.
- ^ a b "Tour to See Legacy Left by Wright". Chicago Tribune. September 29, 1963. p. S1. ISSN 1085-6706. ProQuest 176402046.
- ^ a b c d Conner, Gerald (March 21, 1971). "Members Make Plans to Save Unity Temple". Chicago Tribune. p. 19. ISSN 1085-6706. Retrieved February 6, 2025 – via newspapers.com.
- ^ a b c d e Devine, Kay (June 30, 1976). "Unity Temple plans fund-raiser tour to aid restoration efforts". News Journal. p. 111. Retrieved February 1, 2025 – via newspapers.com.
- ^ a b "Unitarian Church Will Open Tours". Oak Leaves. April 27, 1967. p. 7. Retrieved February 3, 2025 – via River Forest Public Library; "Unitarian Church Open to Public". Berwyn Life. April 28, 1967. p. 8. Retrieved February 3, 2025 – via newspapers.com.
- ^ a b "Foundation backs $150,000 restoration of Unity Temple". Oak Leaves. July 9, 1969. p. 135. Retrieved February 3, 2025 – via River Forest Public Library.
- ^ a b c Marlin, William (March 21, 1971). "Saving Wright's American Dream". Chicago Tribune. p. 136. ISSN 1085-6706. Retrieved February 5, 2025 – via newspapers.com.
- ^ a b c d Patterson, Mary Margaret (March 3, 1971). "Unitarians to hold centennial service". Oak Leaves. p. 8. Retrieved February 3, 2025 – via River Forest Public Library.
- ^ a b c "Restoration with the Wright touch". Oak Leaves. August 18, 1971. p. 57. Retrieved February 6, 2025 – via River Forest Public Library.
- ^ Dillard, Barbara (April 13, 1983). "Japan fair to support Wright church legacy". Chicago Tribune. p. 94. ISSN 1085-6706. Retrieved February 7, 2025 – via newspapers.com.
- ^ a b c d Idoux, Jerry (May 9, 1979). "Temple restoration is Jacobsen's dream". Oak Leaves. p. 36. Retrieved February 6, 2025 – via River Forest Public Library.
- ^ "Foundation to be set up to renew Unity Temple". Oak Leaves. December 13, 1972. p. 66. Retrieved February 6, 2025 – via River Forest Public Library.
- ^ a b c Cypret, Randy (July 23, 1975). "Unity Temple: struggle to save a landmark". News Journal. p. 1. Retrieved February 1, 2025 – via newspapers.com.
- ^ a b c d Gapp, Paul (April 13, 1978). "Group seeks $50,000 to restore Unity Temple". Chicago Tribune. p. 48. ISSN 1085-6706. Retrieved February 6, 2025 – via newspapers.com.
- ^ a b Van Wyk, Betty (June 19, 1974). "'Angels' needed for temple". Oak Leaves. pp. 4, 11. Retrieved February 6, 2025 – via River Forest Public Library.
- ^ a b c "Unity Temple is getting a face lift". Oak Leaves. October 17, 1973. p. 60. Retrieved February 6, 2025 – via River Forest Public Library.
- ^ a b c d e Kamin, Blair (May 20, 2017). "Delayed restoration of Frank Lloyd Wright's Unity Temple is triumphant". Chicago Tribune. ISSN 1085-6706. Retrieved February 9, 2025.
- ^ a b c Cooper, Charlotte (October 19, 1983). "$500,000 restoration tab for Unity Temple". Oak Leaves. p. 23. Retrieved February 7, 2025.
- ^ a b c Gauer, James (May 25, 2017). "Restoration of Frank Lloyd Wright's Unity Temple Unveiled". Architectural Record. Retrieved January 29, 2025.
- ^ "Matching fund needed for Unity Temple grant". News Journal. August 11, 1974. p. 4. Retrieved February 4, 2025 – via newspapers.com.
- ^ "Funds for Unity Temple landmark are sought". Chicago Tribune. September 13, 1973. p. 155. ISSN 1085-6706. Retrieved February 6, 2025 – via newspapers.com; "State requests funds to restore temple". News Journal. September 16, 1973. p. 6. Retrieved February 6, 2025 – via newspapers.com.
- ^ a b "Great architecture and music meet Feb. 23". Oak Leaves. February 20, 1974. p. 22. Retrieved February 6, 2025 – via River Forest Public Library.
- ^ a b c "Unity concert series mingles the arts". News Journal. October 6, 1974. p. 3. Retrieved February 6, 2025 – via newspapers.com.
- ^ "Baroque concert at Unity Temple". Oak Leaves. October 30, 1974. p. 51. Retrieved February 6, 2025 – via River Forest Public Library.
- ^ "Tours set at Wright buildings". Chicago Tribune. July 15, 1976. p. 44. ISSN 1085-6706. Retrieved February 6, 2025 – via newspapers.com.
- ^ Marlin, William (November 14, 1975). "Oak Park renews ties to Frank Lloyd Wright: Simple, close-knit Template for development Emergency repairs". The Christian Science Monitor. p. 32. ISSN 0882-7729. ProQuest 511855922.
- ^ "Unity Temple drive reaches half-way mark". Oak Leaves. April 5, 1978. p. 6. Retrieved February 6, 2025 – via River Forest Public Library.
- ^ a b c "Temple seeks restoration". The Life. May 2, 1979. p. 26. Retrieved February 6, 2025 – via newspapers.com.
- ^ a b "Unity Temple work progresses". Oak Leaves. November 7, 1979. p. 8. Retrieved February 6, 2025 – via River Forest Public Library.
- ^ "Benefit skit to aid Wright restoration". Oak Leaves. April 23, 1980. p. 27. Retrieved February 6, 2025.
- ^ a b "New minister finds 'creative challenge'". Oak Leaves. August 26, 1981. p. 67. Retrieved February 7, 2025.
- ^ "Unity Temple auxiliary is started". Oak Leaves. November 24, 1982. p. 62. Retrieved February 7, 2025.
- ^ a b Vrba, Harriet (September 26, 1984). "Unity restored for its 75th anniversary". Oak Leaves. pp. 7, 8. Retrieved February 6, 2025 – via River Forest Public Library.
- ^ a b c d "Temple by Frank Lloyd Wright Is Renovated". The New York Times. September 2, 1984. ISSN 0362-4331. Retrieved February 7, 2025.
- ^ "Domino's picks Unity Temple for restoration challenge grant". Oak Leaves. November 25, 1987. p. 79. Retrieved February 7, 2025; Bohlin, Virginia (November 1, 1987). "Baseball owner a major leaguer in the world of decorative arts". The Boston Globe. p. 258. Retrieved February 7, 2025 – via newspapers.com.
- ^ a b "Unity Temple Foundation gets preservation grant". Oak Leaves. January 27, 1988. p. 28. Retrieved February 7, 2025.
- ^ "Pact ensures integrity". Herald and Review. Associated Press. January 9, 1988. p. 10. Retrieved February 7, 2025 – via newspapers.com.
- ^ a b c d "Wright church's restoration begins". JG-TC: Journal Gazette and Times-Courier. Associated Press. September 15, 1988. p. 16. Retrieved February 7, 2025 – via newspapers.com.
- ^ Kennedy, Bridget (May 30, 2007). "OP resident receives Unity Temple award". Forest Leaves. pp. 16, 18. Retrieved February 9, 2025.
- ^ "Preservation awards issued". Oak Leaves. August 10, 1994. p. 12. Retrieved February 7, 2025.
- ^ a b Montgomery, Susan (November 23, 1994). "The quest for donations". Forest Leaves. p. 8. Retrieved February 7, 2025.
- ^ a b Fegelman, Andrew (September 15, 1989). "Cracks threat to Wright building". The Asheville Times. p. 10. Retrieved February 7, 2025 – via newspapers.com.
- ^ a b Seigenthaler, Katherine (September 25, 1989). "Cease-fire in Wright church spat". Chicago Tribune. p. 19. ISSN 1085-6706. Retrieved February 7, 2025 – via newspapers.com.
- ^ "More tests in store for Unity Temple". Chicago Tribune. November 14, 1989. p. 25. ISSN 1085-6706. Retrieved February 7, 2025 – via newspapers.com.
- ^ Sommers, Carl (October 6, 1991). "Q and A". The New York Times. ISSN 0362-4331. Retrieved January 24, 2025.
- ^ a b c Posner, Ellen (May 10, 1992). "An American Dreamer". The Independent. pp. 80, 82. Retrieved January 31, 2025 – via newspapers.com.
- ^ a b "Interim named at Unity Temple". Forest Leaves. September 4, 1991. p. 93. Retrieved February 7, 2025.
- ^ a b c "New minister at Unity Temple". Forest Leaves. September 1, 1993. p. 94. Retrieved February 7, 2025.
- ^ a b Kamin, Blair (October 21, 1993). "Mies-designed House Moving to Wilder Park". Chicago Tribune. p. 78. ISSN 1085-6706. Retrieved February 7, 2025 – via newspapers.com.
- ^ "Two congregations take on new name". Forest Leaves. March 15, 1995. p. 107. Retrieved February 7, 2025.
- ^ "Volunteers sought for Unity Temple". Forest Leaves. September 21, 1994. p. 125. Retrieved February 7, 2025.
- ^ a b Reich, Howard (March 23, 1997). "Temple of Music". Chicago Tribune. p. 7.9. ISSN 1085-6706. Retrieved January 31, 2025 – via newspapers.com.
- ^ a b Shields, Todd (February 26, 1997). "All that jazz at Unity Temple". Forest Leaves. pp. 25, 28. Retrieved February 7, 2025.
- ^ a b Shields, Todd (March 10, 1999). "OP approves money for study of Unity Temple". Forest Leaves. p. 14. Retrieved February 7, 2025.
- ^ Kamin, Blair (February 14, 1999). "Crumbling icons". Chicago Tribune. pp. 7.1, 7.12, 7.13. ISSN 1085-6706. Retrieved February 7, 2025 – via newspapers.com.
- ^ a b Dardick, Hal (October 7, 2004). "Wright's temple gets repair help". Chicago Tribune. pp. 2.1, 2.10. ISSN 1085-6706. Retrieved February 8, 2025 – via newspapers.com.
- ^ Thomas, Kadesha M. (June 7, 2000). "OP has go-to guy in Saviano". Forest Leaves. p. 8. Retrieved February 7, 2025.
- ^ a b c d e "Temple undoomed". Building Design & Construction. Vol. 42, no. 1. January 2001. p. 9. ProQuest 211013541.
- ^ a b c d e Pierre, Robert E. (January 21, 2003). "Saving the Wright Stuff Is A Mission for Illinois Church". The Washington Post. p. A3. ISSN 0190-8286. ProQuest 2267542368. Retrieved February 8, 2025.
- ^ a b Kamin, Blair (February 14, 1999). "Crumbling Icons Some of Frank Lloyd Wright's Greatest Buildings Are Falling Apart. But the Bigger Question is: What Can We Do to Save Them?". Chicago Tribune. p. 1. ISSN 1085-6706. ProQuest 418855393.
- ^ a b c d e f Knecht 2001, p. 173.
- ^ a b c "Going 'green' at Unity Temple". Southern Illinoisan. Associated Press. October 3, 2005. p. 21. Retrieved February 8, 2025 – via newspapers.com.
- ^ Bentrup, Cheri (January 12, 2000). "Work crews tend to Unity Temple". Forest Leaves. p. 9. Retrieved February 7, 2025.
- ^ a b Mendell, David (March 22, 2000). "McPier building, DuPage Theatre on endangered list". Chicago Tribune. p. 2.2. ISSN 1085-6706. Retrieved February 8, 2025 – via newspapers.com.
- ^ a b Blaser, Randy (March 29, 2000). "How Unity Temple won $1 million". Forest Leaves. pp. 7, 14. Retrieved February 7, 2025.
- ^ Donato, Marla (May 2, 2000). "State to Give $1 Million to Unity Temple to Restore Wright's Design". Chicago Tribune. p. 2C3. ISSN 1085-6706. ProQuest 419106688. Retrieved January 30, 2025.
- ^ Bentrup, Cheri (December 27, 2000). "Unity Temple repairs to begin in February". Forest Leaves. p. 10. Retrieved February 7, 2025.
- ^ Knecht 2001, p. 174.
- ^ Mannion, Annemarie (September 27, 2000). "Prairie home companion". Chicago Tribune. p. 135. ISSN 1085-6706. Retrieved February 8, 2025 – via newspapers.com.
- ^ Knecht 2001, pp. 173–174.
- ^ a b c Kates, Joan Giangrasse (May 25, 2003). "Oak Park cleric helped Oklahoma after bombing". Chicago Tribune. p. 4.11. ISSN 1085-6706. Retrieved February 8, 2025 – via newspapers.com.
- ^ "Unity Temple installs new minister". Forest Leaves. January 18, 2005. p. 92. Retrieved February 7, 2025.
- ^ a b c Bentrup, Cheri (September 10, 2003). "Taylor at helm of Unity congregation". Forest Leaves. p. 65. Retrieved February 7, 2025.
- ^ Schwing, John (September 7, 2023). "Minister takes 'hybrid' pulpit at UUWestport". Westport Journal. Retrieved January 31, 2025.
- ^ a b Dardick, Hal (October 7, 2004). "Wright's temple gets repair help". Chicago Tribune. p. 2.3. ISSN 1085-6706. Retrieved February 8, 2025 – via newspapers.com.
- ^ a b Bentrup, Cheri (October 27, 2004). "Unity Temple gets preservation grant". Forest Leaves. p. 8. Retrieved February 7, 2025.
- ^ a b c d Stuart, Laura (November 8, 2005). "The greening of Unity Temple". Wednesday Journal. Retrieved January 27, 2025.
- ^ a b c d e Bowen, Ted Smalley (February 2006). "Unity Temple will use geothermal energy after its first major restoration" (PDF). Architectural Record. Vol. 194, no. 2. pp. 139–140. ProQuest 222131743.
- ^ a b c d e Van Hampton, Tudor (November 25, 2009). "As More Buildings Go Geothermal, Project Teams Are Thinking Outside the Borehole". Engineering News-Record. Retrieved January 27, 2025.
- ^ "Vase and chairs sold to preserve Wright church". UU World : The Magazine of the Unitarian Universalist Association. Vol. 17, no. 3. May–June 2003. p. 50. ProQuest 201556250.
- ^ a b "BauHaus Apprenticeship Institute donates replicas of heirloom chairs to Frank Lloyd Wright's Unity Temple". Weekend Chicago Defender. October 4, 2003. p. 36. ProQuest 2572615518.
- ^ Bentrup, Cheri (January 5, 2005). "Unity Temple to mark Wright's visit to Japan". Forest Leaves. p. 13. Retrieved February 7, 2025.
- ^ "May 13 view proposed designs for Unity Temple". Forest Leaves. May 10, 2006. pp. 98, 99. Retrieved February 7, 2025.
- ^ a b c d e f g Johnson, Steve (July 29, 2015). "Fixing Frank: Unity Temple gets a sorely needed $23 million restoration". Chicago Tribune. ISSN 1085-6706. Retrieved January 29, 2025.
- ^ a b c Stempniak, Marty (April 28, 2009). "Unity Temple lands on national endangered list". Wednesday Journal. Retrieved January 29, 2025.
- ^ a b Working, Russell (December 17, 2008). "Unity Temple captures $200,000 federal grant". Chicago Tribune. p. 1.30. ISSN 1085-6706. Retrieved January 30, 2025 – via newspapers.com.
- ^ "Unity Temple wins $200K grant". Wednesday Journal. December 22, 2008. Retrieved January 30, 2025.
- ^ Lacayo, Richard (April 27, 2009). "The Eleven Most Endangered Historic Sites". Time. Retrieved January 29, 2025; Pogrebin, Robin (April 27, 2009). "Preservation Group Lists Most Endangered Places". The New York Times. ISSN 0362-4331. Retrieved January 29, 2025.
- ^ Vassolo, Elizabeth (September 10, 2009). "Unity Temple awarded improvement grant". Chicago Tribune. p. 0.1. ISSN 1085-6706. Retrieved February 8, 2025 – via newspapers.com.
- ^ Dechter, Felicia (September 24, 2009). "Gala to celebrate 100 years of Unity Temple". Forest Leaves. pp. 12, 15. Retrieved February 9, 2025.
- ^ Von Rhein, John (May 14, 2009). "Chicago Chamber Musicians to help Unity Temple effort". Chicago Tribune. p. 3.3. ISSN 1085-6706. Retrieved February 8, 2025 – via newspapers.com.
- ^ Bergin, Mary (June 26, 2016). "Take Ten: Frank Lloyd Wright sites". Kenosha News. p. 45. Retrieved December 30, 2024 – via newspapers.com.
- ^ "Century-Old Bronze Letters Stolen off Unity Temple". NBC Chicago. October 4, 2010. Retrieved February 8, 2025; "Thieves Steal Bronze Lettering Off Historic Temple". CBS Chicago. October 4, 2010. Retrieved February 8, 2025.
- ^ Jaworski, Jim (October 27, 2011). "Stolen Unity letters expected to be replaced". Chicago Tribune. p. 0.3. ISSN 1085-6706. Retrieved February 8, 2025 – via newspapers.com.
- ^ Malina, Amy (February 9, 2021). "Victory over the elements". Forest Park Review. Retrieved February 8, 2025.
- ^ Lothson, Anna (May 15, 2013). "Chicago foundation pledges $10 million toward Unity Temple restoration". Wednesday Journal. Retrieved February 8, 2025; "Deal reached to restore Frank Lloyd Wright temple in Oak Park". The Taylorville Daily Breeze Courier. Associated Press. May 16, 2013. p. 5. Retrieved February 8, 2025 – via newspapers.com.
- ^ a b Bentley, Chris (May 16, 2013). "Unity Temple Congregation May Yield Ownership in Costly Restoration Campaign". The Architect's Newspaper. Retrieved January 29, 2025.
- ^ "Unity Temple ownership could change hands". Chicago Tribune. May 24, 2013. ISSN 1085-6706. Retrieved January 29, 2025; Bey, Lee (May 15, 2013). "Congregation mulls yielding ownership of Frank Lloyd Wright-designed church". WBEZ. Retrieved January 29, 2025.
- ^ a b c Mullen, Caitlin (August 3, 2015). "Dust flying as Unity Temple restoration gets fully underway". Chicago Tribune. ISSN 1085-6706. Retrieved February 8, 2025.
- ^ a b Hernandez, Alex V. (March 23, 2015). "Unity Temple congregation finds new home as renovation nears". Chicago Tribune. p. TAB-16. ISSN 1085-6706. Retrieved January 29, 2025.
- ^ a b c d Inklebarger, Timothy (June 23, 2015). "Unity Temple under wraps as restoration begins". Wednesday Journal. Retrieved January 29, 2025.
- ^ a b "Unity Temple Reopens After Multi-Million Dollar Renovations". CBS Chicago. May 25, 2017. Retrieved February 7, 2025.
- ^ a b Mullen, Caitlin (November 29, 2016). "Unity Temple restoration now expected to be complete in March". Chicago Tribune. ISSN 1085-6706. Retrieved February 8, 2025.
- ^ "Oak Park Church to Sell Iconic Billiards Tables". WTTW News. September 28, 2016. Retrieved February 8, 2025; Inklebarger, Timothy (October 4, 2016). "Unity Temple to open offices, classrooms in old pool hall". Wednesday Journal. Retrieved February 8, 2025.
- ^ Lewis, Sean (June 18, 2017). "Frank Lloyd Wright's newly-restored Unity Temple reopens its doors". WGN-TV. Retrieved February 7, 2025.
- ^ Koziarz, Jay (June 29, 2017). "Tour Frank Lloyd Wright's restored Unity Temple starting this weekend". Curbed Chicago. Retrieved February 9, 2025.
- ^ a b c Dechter, Felicia (July 2, 2017). "Column: Unity Temple tours to showcase renovation work". Chicago Tribune. ISSN 1085-6706. Retrieved February 9, 2025.
- ^ a b Hindery, Rachel K. (May 26, 2017). "Unity Temple officials on restoration of 'internationally iconic' Frank Lloyd Wright building". Chicago Tribune. ISSN 1085-6706. Retrieved February 9, 2025.
- ^ Inklebarger, Timothy (December 19, 2018). "Unity Temple congregation opposes Golub tower". Wednesday Journal. Retrieved February 9, 2025; Schering, Steve (December 18, 2018). "Expressing 'serious concerns,' Unity Temple board announces opposition to proposed 28-story development". Chicago Tribune. ISSN 1085-6706. Retrieved February 9, 2025.
- ^ Inklebarger, Timothy (March 22, 2019). "Golub pulls plans for 28-story high-rise". Wednesday Journal. Retrieved February 9, 2025.
- ^ a b Holmes, Tom (April 9, 2021). "Unity Temple's minister, Alan Taylor, leaving after 18 years". Wednesday Journal. Retrieved January 31, 2025.
- ^ a b c Holmes, Tom (September 19, 2023). "Unity Temple welcomes a 'temporary/long term' leader". Wednesday Journal. Retrieved January 31, 2025.
- ^ Sheridan, Stacey (October 10, 2023). "The foundation designed to restore Unity Temple is dissolving". Wednesday Journal. Retrieved February 3, 2025; Pride, Ray (September 25, 2023). "Today In Culture, September 25, 2023: Unity Temple Foundation Closing". Newcity. Retrieved February 3, 2025.
- ^ Hoglund, Joel (2014). Wright Sites: A Guide to Frank Lloyd Wright Public Places. Princeton Architectural Press. p. 58. ISBN 978-1-61689-590-7. Retrieved January 31, 2025.
- ^ a b c Gibson, Eleanor (June 12, 2017). "Frank Lloyd Wright's Unity Temple was the "first expression" of modern architecture". Dezeen. Retrieved January 31, 2025.
- ^ a b c National Park Service 1970, p. 2.
- ^ "Oak Park Map Viewer". GIS Consortium – Local Governments That Work Collectively. Retrieved February 15, 2025.
- ^ a b Zak, Victor (March 18, 2001). "Something so right in Oak Park". The Central New Jersey Home News. pp. F1, F5. Retrieved January 27, 2025 – via newspapers.com.
- ^ Dorman, John L. (November 18, 2015). "Tracing Frank Lloyd Wright in Oak Park, Illinois". The New York Times. ISSN 0362-4331. Retrieved February 8, 2025; Nelson, Marcia Z. (September 27, 2000). "Past residents attract tourists". Chicago Tribune. p. 138. ISSN 1085-6706. Retrieved February 8, 2025 – via newspapers.com.
- ^ a b c Siry 1996, p. 189.
- ^ Guarino, Jean (June 1, 1980). "Visiting the 'Prairie Style' Homes of Frank Lloyd Wright in Oak Park, Ill". The New York Times. ISSN 0362-4331. Retrieved February 7, 2025.
- ^ a b Siry 1996, p. 121.
- ^ a b c d e "Our Illustrations". The Inland Architect and News Record. Vol. LII, no. 6. December 1906. p. 77. Retrieved February 3, 2025 – via HathiTrust.
- ^ a b Siry 1996, pp. 166–167.
- ^ a b c Siry 1996, pp. 189–190.
- ^ Siry 1996, p. 86.
- ^ Lubow, Arthur (May 31, 2009). "The Triumph of Frank Lloyd Wright". Smithsonian Magazine. Retrieved February 8, 2025.
- ^ Siry 1996, p. 191.
- ^ a b c d e f g h Levine 1996, p. 41.
- ^ a b "Meeting of the Titans". Newsday. April 20, 1957. pp. 1M, 2M, 3M, 4M. Retrieved February 3, 2025 – via newspapers.com.
- ^ a b Wenneker, Lu B (Fall 1965). "Ornamentation and the Organic Architecture of Frank Lloyd Wright". Art Journal. Vol. 25, no. 1. p. 5. ProQuest 1290043466.
- ^ a b c Ferry 1907, p. 97.
- ^ a b c d e Kamin, Blair (January 31, 2025). "Frank Lloyd Wright's Unity Temple: Rewriting the Rules; The modern American visionary upended tradition with this Chicago-area church, whose imposing exterior houses an airy, tranquil sanctuary". The Wall Street Journal. ISSN 0099-9660. ProQuest 3161952541. Retrieved February 9, 2025.
- ^ a b c Siry 1996, p. 147.
- ^ a b Siry 1996, pp. 141–142.
- ^ a b c d e f McCarter et al 1997, p. 18.
- ^ a b c d e f Siry 1996, p. 156.
- ^ a b c d McCarter et al 1997, p. 17.
- ^ Siry 1996, pp. 149–150.
- ^ Siry 1996, p. 149.
- ^ a b "Bridge Plans and Estimates Made by the State Highway Commission". Concrete Engineering. Vol. 1, no. 12. June 15, 1907. p. 289. ProQuest 128383006.
- ^ a b Siry 1996, pp. 187–188.
- ^ a b c Siry 1996, p. 150.
- ^ Pitz, Marylynne (June 13, 2010). "A Treasure Trove of Wright". Pittsburgh Post-Gazette. pp. E1, E5. ISSN 2692-6903. Retrieved February 8, 2025 – via newspapers.com.
- ^ a b Siry 1996, p. 77.
- ^ Rowley, Gordon E. (October 10, 1982). "Checking out what's Wright in Illinois". The San Francisco Examiner. p. 95. Retrieved February 6, 2025 – via newspapers.com.
- ^ a b Siry 1996, p. 155.
- ^ a b Siry 1996, p. 165.
- ^ a b c McCarter et al 1997, p. 19.
- ^ a b c d e f g Siry 1996, p. 164.
- ^ Levine 1996, p. 46.
- ^ a b "Concert in Unity Temple to honor Wright heritage". Oak Leaves. June 18, 1969. p. 6. Retrieved February 6, 2025 – via River Forest Public Library.
- ^ a b c d Siry 1996, p. 170.
- ^ a b c Reid, Kerry (May 1, 2014). "DIY tour of FLW". Chicago Tribune. p. 4.3. ISSN 1085-6706. Retrieved February 8, 2025 – via newspapers.com.
- ^ a b c Koziarz, Jay (June 7, 2017). "Restoration done Wright: A look inside Unity Temple". Curbed Chicago. Retrieved February 9, 2025.
- ^ Sokol 2008, p. xxxvii.
- ^ Levine 1996, pp. 41–43.
- ^ a b c d e f g McCarter et al 1997, p. 22.
- ^ McCarter et al 1997, p. 11; Sokol 2008, p. 58.
- ^ a b "Concerts to aid restoration". Oak Leaves. February 26, 1975. p. 39. Retrieved February 6, 2025 – via River Forest Public Library.
- ^ a b Zoroya, Gregg (November 6, 1998). "Traveling to all the Wright places". USA Today. p. 10D. ProQuest 408753108.
- ^ a b Levine 1996, p. 45.
- ^ a b c Wright 2005, p. 155.
- ^ Siry 1996, p. 104.
- ^ a b c Levine 1996, p. 43.
- ^ a b McCarter et al 1997, pp. 17–18.
- ^ Siry 1996, p. 180.
- ^ a b c d e f Siry 1996, p. 160.
- ^ a b c d e Levine 1996, p. 44.
- ^ Siry 1996, p. 186.
- ^ a b Siry 1996, pp. 182–183.
- ^ a b c Siry 1996, p. 177.
- ^ a b McCarter et al 1997, p. 21.
- ^ a b McCarter et al 1997, pp. 21–22.
- ^ a b c Biemiller, Lawrence (February 23, 1996). "Lessons in wood and stone". The Chronicle of Higher Education. Vol. 42, no. 24. p. C5. ProQuest 214726508.
- ^ a b Siry 1996, p. 124.
- ^ Siry 1996, pp. 184–185; Sokol 2008, pp. 132–135.
- ^ a b Siry 1996, p. 172.
- ^ Siry 1996, pp. 174–175.
- ^ Siry 1996, pp. 185–186.
- ^ a b c Siry 1996, pp. 161–162.
- ^ a b Sokol 2008, p. 137.
- ^ Lydersen, Kari (October 15, 2018). "Geothermal and the city: Utilities and industry push installations in Chicago". Energy News Network. Retrieved January 27, 2025.
- ^ a b "Ministers". Unity Temple. March 6, 2024. Retrieved January 31, 2025.
- ^ Holmes, Tom (October 7, 2008). "Called to faith". Wednesday Journal. Retrieved January 29, 2025.
- ^ "Sunday Service". Unity Temple. September 17, 2024. Retrieved February 3, 2025.
- ^ See, for example: "Special Wright bus tour slated for Nov. 9". Oak Leaves. October 16, 1974. p. 4. Retrieved February 6, 2025 – via River Forest Public Library; "Mining Oak Park's treasures... in a 9-day showcase of arts, architecture, history". Chicago Tribune. July 14, 1978. pp. 4.3, 4.5. ISSN 1085-6706. Retrieved February 6, 2025 – via newspapers.com.
- ^ See, for example: Guarino, Jean (March 30, 1975). "Wright tour center is architectural hub". News Journal. p. 10. Retrieved February 7, 2025 – via newspapers.com; McLane, Daisann (June 27, 1999). "Frugal Traveler; City of Skyscrapers and Sister Carrie". The New York Times. ISSN 0362-4331. Retrieved February 7, 2025.
- ^ Megan, Graydon (January 24, 2025). "Lineup set for Oak Park's Wright Plus house tour, including some featured for first time". Chicago Tribune. ISSN 1085-6706. Retrieved February 6, 2025.
- ^ Koziarz, Jay (April 3, 2020). "Take virtual tours of 12 Frank Lloyd Wright masterpieces each week". Curbed Chicago. Retrieved January 31, 2025.
- ^ Malone, David (May 8, 2018). "Illinois Office of Tourism unveils new Frank Lloyd Wright Trail". Building Design+Construction. Retrieved February 9, 2025; "13 Wright sites on Illinois trail". Los Angeles Times. May 4, 2018. ISSN 0458-3035. Retrieved February 9, 2025.
- ^ a b Niedert, Kathy (January 28, 1976). "'Music's sound is perfect here'". Oak Leaves. p. 47. Retrieved February 6, 2025 – via River Forest Public Library.
- ^ Mauro, Lucia (May 6, 1998). "Unity Temple concert celebrates 25th". Oak Leaves. pp. B3, B6. Retrieved February 7, 2025.
- ^ Reger, Rick (July 4, 1998). "Improvising trio embarks on search for ideas". Chicago Tribune. p. 173. ISSN 1085-6706. Retrieved January 31, 2025 – via newspapers.com.
- ^ See, for instance: "Universalists Plan Merger of Two Churches: St. Paul's and Woodlawn Congregations May Be Consolidated". Chicago Daily Tribune. October 31, 1916. p. 11. ISSN 1085-6706. ProQuest 174129264.
- ^ See, for example: "Church Youth to Take Stand Opposing War". Chicago Tribune. July 8, 1941. p. 9. ISSN 1085-6706. Retrieved February 3, 2025 – via newspapers.com.
- ^ "A Place By the Open Fire". Oak Leaves. April 8, 1954. p. 49. Retrieved February 3, 2025 – via River Forest Public Library.
- ^ "Rev. Box to Be 2nd Speaker in Church Series". The Austin News. July 8, 1964. p. 5. Retrieved February 3, 2025 – via newspapers.com.
- ^ "Wright Foundation has series for kids". Oak Leaves. February 26, 1992. p. 78. Retrieved February 7, 2025.
- ^ "Wright drawings displayed". Cardunal Free Press. September 26, 1978. p. 6. Retrieved February 6, 2025 – via newspapers.com; Teclaw, Nancy (September 6, 1978). "Sixty Onward". Oak Leaves. p. 27. Retrieved February 6, 2025 – via River Forest Public Library.
- ^ "Frank Lloyd Wright and His Art". The New York Times. October 4, 1953. pp. SM26. ISSN 0362-4331. ProQuest 112564807; Del Campo, Santiago (April 1954). "An Afternoon With Frank Lloyd Wright". Americas. Vol. 6, no. 4. p. 11. ProQuest 1797186012.
- ^ a b Gapp, Paul (March 13, 1992). "Deity of U.S. Design". Sun Sentinel. p. 3E. ProQuest 388948852.
- ^ Sikora, Lacey (June 6, 2017). "Wright in time". Wednesday Journal. Retrieved February 9, 2025.
- ^ Wright, Olgivanna Lloyd (March 13, 1961). "Our House". The Capital Times. p. 3. Retrieved February 3, 2025 – via newspapers.com.
- ^ Wallach, Amei (February 13, 1994). "Architect of the American Dream Frank Lloyd Wright Imposed His Visions on Our Environment – Leaky Roofs and All". Newsday. ISSN 2574-5298. ProQuest 278723044; Coletti, Paul (February 21, 1969). "Frank Lloyd Wright: 'The Early Years'". Boston Globe. p. 29. ProQuest 366725724.
- ^ Rose, David (October 23, 1993). "Heritage buildings victims of neglect; Protected status offers no guarantee". The London Gazette. p. J5. ProQuest 432505216.
- ^ "Spiritual Landmark". UU World : The Magazine of the Unitarian Universalist Association. Vol. 18, no. 5. September–October 2004. p. 19. ProQuest 201504767.
- ^ Giovannini, Joseph (June 1999). "For the people" (PDF). Architecture: The AIA Journal. Vol. 88, no. 6. pp. 133–137. ProQuest 227795495.
- ^ "Unity Temple: Frank Lloyd Wright's Approach to Sacred Space". ArchEyes. January 19, 2025. Retrieved February 7, 2025.
- ^ Krecker, Ada May (May 16, 1909). "A Church of Which Oak Park Is Proud". Chicago Daily Tribune. p. H4. ISSN 1085-6706. ProQuest 173528161.
- ^ "Defends the Architecture of Churches in Oak Park". Chicago Tribune. November 29, 1909. p. 6. ISSN 1085-6706. Retrieved January 30, 2025 – via newspapers.com.
- ^ Goodman, Walter (November 10, 1998). "Television Review; A Visionary's Dreams, Disguised as Buildings, Altered the Landscape". The New York Times. ISSN 0362-4331. Retrieved February 7, 2025.
- ^ Scarborough, Katherine (October 18, 1929). "America Sing Its Own 'Frozen Music': Less Than Two Centuries Required for Its Use in Architecture". The Baltimore Sun. p. 1. ISSN 1930-8965. ProQuest 543542652.
- ^ "Wright's Love Affairs Would Fill Big Book". Wausau Daily Herald. September 3, 1928. p. 8. Retrieved February 3, 2025 – via newspapers.com.
- ^ Bull, John V. R. (April 5, 1981). "Wright's Legacy Is at Home in Oak Park, Illinois". The Buffalo News. p. 70. Retrieved February 6, 2025 – via newspapers.com.
- ^ Campbell, Robert (May 5, 1987). "Crumbling National Treasures It's Time to Restore Frank Lloyd Wright's Houses". p. 67. ProQuest 294429166.
- ^ "Unity Temple". PBS. November 12, 2018. Retrieved February 8, 2025.
- ^ Goldberger, Paul (December 26, 1982). "Housing for the Spirit". The New York Times. ISSN 0362-4331. Retrieved February 8, 2025.
- ^ "Seventeen Buildings Honored by the American Institute of Architects". Wright on the Web. February 22, 2017.
- ^ Board of Directors, American Institute of Architecture. "Seventeen Buildings Worthy of Preservation" (PDF). American Institute of Architects. Retrieved November 2, 2012.
- ^ Kamin, Blair (October 26, 2018). "Restored Unity Temple, Loop CTA station highlight winners of architecture awards". Chicago Tribune. ISSN 1085-6706. Retrieved October 28, 2018.
- ^ Testado, Justine (November 7, 2018). "Preservation of Karl Marx School wins 2018 WMF/Knoll Modernism Prize, special mention awarded to restored Unity Temple by Frank Lloyd Wright". Bustler. Retrieved February 8, 2025; McGrath, Katherine (November 7, 2018). "World Monuments Fund Announces the Winner of the 2018 WMF Knoll Modernism Prize". Architectural Digest. Retrieved February 8, 2025.
- ^ "ULI Chicago names nine winners at 2019 Vision Awards – REJournals". REJournals – Commercial real estate news. Retrieved February 8, 2025.
- ^ Sheridan, Stacey (October 14, 2019). "Unity Temple snags Driehaus Award". Wednesday Journal. Retrieved February 8, 2025; Schaenzer, Amie (October 11, 2019). "Oak Park Unity Temple Wins National Preservation Award". Oak Park-River Forest, IL Patch. Retrieved February 8, 2025.
- ^ Siry 1996, p. 227.
- ^ Brooks, H Allen (June 1, 1966). "Frank Lloyd Wright and the Wasmuth Drawings". The Art Bulletin. Vol. 48, no. 2. p. 195. ProQuest 1296205989.
- ^ Balmer, Randall (March 1999). "Unity Temple: Frank Lloyd Wright and Architecture for Liberal Religion". Church History. Vol. 68, no. 1. pp. 223–224. ProQuest 217517179.
- ^ Miller, Donald (December 21, 1997). "Built to Last". Pittsburgh Post-Gazette. p. 76. ISSN 2692-6903. Retrieved February 8, 2025 – via newspapers.com.
- ^ Walton, Christopher L. (Winter 2009). "Frank Lloyd Wright's Unity Temple: A Good Time Place". UU World : The Magazine of the Unitarian Universalist Association. Vol. 23, no. 7. p. 57. ProQuest 201541149.
- ^ Sikora, Lacey (May 24, 2023). "Book on Unity Temple awarded gold medal". Wednesday Journal. Retrieved February 8, 2025.
- ^ "Wright Buildings Set for Archives". Chicago Tribune. July 30, 1967. p. 364. ISSN 1085-6706. Retrieved February 1, 2025 – via newspapers.com.
- ^ Huxtable, Ada Louise (May 18, 1965). "Architecture: Trend-Setting Departures and Pinnacles of Excellence in U.S.; The Modern Displays Changes Since '00". The New York Times. ISSN 0362-4331. Retrieved February 3, 2025.
- ^ Goldberger, Paul (February 7, 1988). "Architecture View; Wright Seen Anew as an Architect of Thoughts". The New York Times. ISSN 0362-4331. Retrieved February 7, 2025.
- ^ Bach, Erwin E. (May 18, 1977). "Show turns poetry of Wright into visual reality". Chicago Tribune. p. 80. ISSN 1085-6706. Retrieved February 6, 2025 – via newspapers.com.
- ^ Goldberger, Paul (February 6, 1990). "Review/Architecture; Frank Lloyd Wright Is Lauded in Phoenix With His Own Work". The New York Times. ISSN 0362-4331. Retrieved February 7, 2025.
- ^ Kamin, Blair (October 31, 1996). "Picture perfect: Oak Park Library show a proper tribute to Wright". Chicago Tribune. p. 71. ISSN 1085-6706. Retrieved February 7, 2025 – via newspapers.com.
- ^ Kilzer, Mary (May 19, 1982). "Film flames Scot's desire to know why Wright isn't right at home". Forest Leaves. p. 55. Retrieved February 12, 2025.
- ^ Hickman, Matt (October 21, 2020). "A Brad Pitt-narrated documentary about restoring the Unity Temple will soon be available for streaming". The Architect's Newspaper. Retrieved January 29, 2025.
- ^ Neira, Juliana (October 12, 2020). "Unity Temple: Frank Lloyd Wright's Modern Masterpiece Documentary is Coming". designboom. Retrieved January 29, 2025; "Weekend watch: Brad Pitt recounts the story of Unity Temple in this new Frank Lloyd Wright film". The Spaces. October 30, 2020. Retrieved January 29, 2025.
- ^ "2 Wright works put on roster". Oak Leaves. May 13, 1970. p. 12. Retrieved February 6, 2025 – via River Forest Public Library.
- ^ "Mills house listed in national register". News Journal. July 23, 1972. p. 5. Retrieved February 6, 2025 – via newspapers.com.
- ^ "NHLs Associated with Frank Lloyd Wright". U.S. National Park Service. March 29, 2007. Retrieved February 6, 2025.
- ^ "Wright buildings named historical landmarks". The Arizona Republic. March 14, 1971. p. 110. Retrieved February 6, 2025 – via newspapers.com.
- ^ "Unity Temple Dedicated as U.S. Landmark". Chicago Tribune. June 7, 1971. p. 30. ISSN 1085-6706. Retrieved February 6, 2025 – via newspapers.com.
- ^ Schneidman, David (September 19, 1971). "Meeting to Discuss Historical Status of Oak Park Portion". Chicago Tribune. p. 24. ISSN 1085-6706. Retrieved February 6, 2025 – via newspapers.com.
- ^ Schneidman, David (February 13, 1972). "Oak Park Approves Frank Lloyd Wright Landmark District". Chicago Tribune. p. W9. ISSN 1085-6706. ProQuest 170204582.
- ^ Hopey, Don (January 30, 2015). "Fallingwater one of 10 Wright structures nominated for World Heritage List". Pittsburgh Post-Gazette. ISSN 2692-6903. Retrieved December 9, 2024.
- ^ "Ten Frank Lloyd Wright Buildings Nominated for UNESCO Distinction". Metropolis. May 17, 2022. Archived from the original on November 28, 2024. Retrieved November 28, 2024; Winston, Anna (February 3, 2015). "Frank Lloyd Wright buildings nominated for UNESCO World Heritage List". Dezeen. Archived from the original on July 2, 2024. Retrieved November 28, 2024.
- ^ "World Attention Fallingwater is Commanding a Greater View". Pittsburgh Post-Gazette. January 26, 2008. pp. B.6. ISSN 2692-6903. ProQuest 390486630.
- ^ Axelrod, Josh (July 7, 2019). "UNESCO Adds 8 Frank Lloyd Wright Buildings To Its List Of World Heritage Sites". NPR. Retrieved January 18, 2025; Tareen, Sophia (July 7, 2019). "Guggenheim Museum Added to UNESCO World Heritage List". WNBC. Archived from the original on July 8, 2019. Retrieved January 18, 2025.
Sources
- Blake, Peter (1996). The Master Builders: Le Corbusier, Mies van der Rohe, Frank Lloyd Wright. The Norton library. New York: Norton. ISBN 978-0-393-31504-2.
- Cannon, Patrick F (2009). Frank Lloyd Wright's Unity Temple: A Good Time Place. Pomegranate Communications. ISBN 978-0-7649-5149-7.
- Ferry, A. M. (September 1, 1907). "A Reinforced Concrete Church". Concrete Engineering. p. 97. ProQuest 128382186.
- Knecht, Barbara (April 2001). "Innovative approach leads to solution for Unity Temple's crumbling exterior: Frank Lloyd Wright's Unity Temple receives a face-lift" (PDF). Tech Briefs. Architectural Record. Vol. 189, no. 4. pp. 173–174. ProQuest 222131430.
- Levine, Neil (1996). The Architecture of Frank Lloyd Wright. Princeton, N.J.: Princeton University Press. ISBN 978-0-691-03371-6.
- McCarter, Robert; Cook, Peter; Blatter, Robert; Sharp, Karen (1997). Unity Temple, Oak Park, Illinois, 1908. London: Phaidon. OCLC 1336474456.
- Saint, Andrew (2003). "Frank Lloyd Wright and Paul Mueller: The Architect and His Builder of Choice". Architectural Research Quarterly. Vol. 7, no. 2. pp. 157–167. doi:10.1017/S1359135503002112. ISSN 1359-1355. Archived from the original on February 23, 2025.
- Schrenk, Lisa D. (2021). The Oak Park Studio of Frank Lloyd Wright. University of Chicago Press. ISBN 978-0-226-31913-1.
- Sokol, David M. (2008). The Noble Room: The Inspired Conception and Tumultuous Creation of Frank Lloyd Wright's Unity Temple. Top Five Books. ISBN 978-0-9789270-7-3.
- Siry, Joseph M. (1996). Unity Temple: Frank Lloyd Wright and Architecture for Liberal Religion. Cambridge University Press. ISBN 978-0-521-62991-1.
- Storrer, William Allin (1993). The Frank Lloyd Wright Companion. Chicago: University of Chicago Press. ISBN 978-0-226-77624-8. OCLC 28676420. (S.096)
- Unity Church (Report). National Register of Historic Places, National Park Service. 1970.
- "Unity Church". Oak Leaves. April 27, 1907. pp. 100–102 – via River Forest Public Library.
- Wright, Frank Lloyd (2005). An autobiography. Petaluma, CA: Pomegranate Communications, Inc. ISBN 978-0-7649-3243-4. OCLC 64590957.




.png)
.png)
.png)
